4 200 000 Р 51 860 $ или 44 410

Информация о квартире

49 м2
Площадь
37 м2
Жилая
7 м2
Кухня
2
Комнаты
8
Этаж
9
Этажность
Развернуть
Агент
+7 (912) 054-86-00
Начать чат с агентом

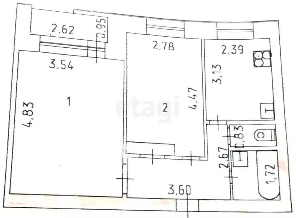
2-комнатная квартира: Глазов, Советская улица, 34 (49 м)

Просторная двухкомнатная квартира на 8 этаже с развитой инфраструктурой предлагается к продаже. Общая площадь 50 м включает изолированные комнаты 17 м и 13 м, кухню 7,5 м и санузел . Планировка функциональна: гостиная выходит на застекленную лоджию с видом на благоустроенный двор, спальня расположена в тихой части дома. Квартира полностью готова к проживанию: энергоэффективные пластиковые окна, сохранен хороший паркет. Расположение обеспечивает высокий уровень удобства: в 300 м — остановки наземного транспорта. В пешей доступности супермаркет, аптека, детский сад и школа. Рядом парковая зона с прогулочными дорожками и спортивной площадкой. Управляющая компания поддерживает чистоту и порядок, оперативно решает вопросы обслуживания. Квартира продается с мебелью и бытовой техникой по согласованию — текущие владельцы готовы рассмотреть варианты передачи части обстановки. Для серьезных покупателей возможен обоснованный торг. Объект подходит как для постоянного проживания благодаря продуманной инфраструктуре, так и для долгосрочных инвестиций — район демонстрирует стабильный рост стоимости недвижимости. Документы подготовлены к сделке, отсутствуют обременения и юридические риски. Для осмотра доступен в любое время по предварительной договоренности. Код пользователя: 92081Номер в базе: 8883641

Читать полностью

    Для того, чтобы купить двухкомнатную квартиру по адресу: Глазов, ул. Советская, 34, позвоните по телефону +7 (912) 054-86-00. Торопитесь! Объявление №30090899828 о продаже двухкомнатной квартиры опубликовано 09 октября 2025.

    Позвонить Написать
    4 200 000 Р51 860 $ или 44 410
    Агент
    +7 (912) 054-86-00
    Начать чат с агентом
    Похожие предложения
    2-к кв. Удмуртия, Глазов Советская ул., 34 (49.0 м) - Фото 1
    2-к кв. Удмуртия, Глазов Советская ул., 34 (49.0 м) - Фото 2
    2-комнатная квартира, общая площадь 49м², кухня 7м²

    Просторная двухкомнатная квартира на 8 этаже с развитой инфраструктурой предлагается к продаже. Общая площадь 50 м включает изолированные комнаты 17 м и 13 м, кухню 7,5 м и санузел . Планировка функциональна: гостиная выходит на застекленную лоджию ...
    • 49 м²
    • 2-ком
    • 8/9 эт.
    • кирпичный
    4 200 000 Р
    Агент
    +7 (912) Показать номер
    Посмотреть контакты
    2-к кв. Удмуртия, Глазов Сибирская ул., 16 (44.0 м) - Фото 1
    2-к кв. Удмуртия, Глазов Сибирская ул., 16 (44.0 м) - Фото 2
    2-комнатная квартира, общая площадь 44м²

    Продаётся двухкомнатная квартира в центре города, удобное расположение, магазины, школы, садики, всё в пешей доступности В квартире пластиковые окна, застекленный балкон. Обременений нет, два взрослых собственника. Фото по запросу Федеральная компания...
    • 44 м²
    • 2-ком
    • 5/5 эт.
    • кирпичный
    4 100 000 Р
    Агент
    +7 (982) Показать номер
    Посмотреть контакты
    2-комнатная квартира: Глазов, Сибирская улица, 16 (44 м) - Фото 1
    2-комнатная квартира: Глазов, Сибирская улица, 16 (44 м) - Фото 2
    2-комнатная квартира, общая площадь 44м²

    Продаётся двухкомнатная квартира в центре города, удобное расположение, магазины, школы, садики, всё в пешей доступности В квартире пластиковые окна, застекленный балкон. Обременений нет, два взрослых собственника. Фото по запросу Федеральная компания...
    • 44 м²
    • 2-ком
    • 5/5 эт.
    4 100 000 Р
    Агент
    +7 (906) Показать номер
    Посмотреть контакты
    2-комнатная квартира, общая площадь 50м², жилая 29м², кухня 6м²

    пpoдaётся теплая, уютная двухкомнатнaя кваpтирa без ремонта с видом из окон во двор. В квартире изолированные комнаты, деревянные рамы на окнах, раздельный санузел, имеется балкон. Соседи спокойные, в подъезде чисто. Около дома достаточно места для парковки....
    • 50 м²
    • 2-ком
    • 8/9 эт.
    4 100 000 Р
    Агент
    +7 (919) Показать номер
    Посмотреть контакты
    2-к кв. Удмуртия, Глазов Комсомольская ул., 14 (58.5 м) - Фото 1
    2-к кв. Удмуртия, Глазов Комсомольская ул., 14 (58.5 м) - Фото 2
    2-комнатная квартира, общая площадь 58м², жилая 32м², кухня 10м²

    теплая, уютная, двухкомнатная квартира с высокими потолками, пластиковые окна, небольшой балкончик с видом во двор, раздельный санузел. Шкаф-купе в коридор и кухонный гарнитур продавец намерена оставить покупателям. Подъезд чистый. Около подъезда достаточно...
    • 58 м²
    • 2-ком
    • 3/3 эт.
    • кирпичный
    4 165 000 Р
    Агент
    +7 (912) Показать номер
    Посмотреть контакты

    Не нашли подходящего объявления?

    Оставьте заявку, и наши риэлторы подберут квартиру в районе Глазова

    (0)