6 499 999 Р 82 710 $ или 70 030

Информация о коттедже

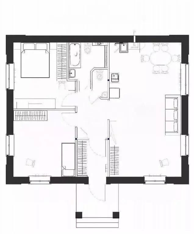
80 м2
Площадь
1
Этажность
10 cоток
Участок

Дополнительная информация

Дом продаётся вместе с участком
есть
Развернуть
Агент
+7 (912) 741-35-42
Начать чат с агентом

Дом в Удмуртия, Ижевск ул. Героя Ивана Клевцова, 44 (80 м)

В ПРОДАЖЕ готовый дом 80 кв. в микрорайоне Чекерил в Ленинском районе г. Ижевска. Дом выполнен в современном стиле, для комфортного и круглогодичного проживания. В доме 2 изолированные спальни, просторная кухня-гостиная, с возможностью разделения, санузел раздельно.На участке проведены все необходимые коммуникации: выгребная яма для канализации и скважина глубиной 65 метров, обеспечивающая дом чистой водой.ПРЕИМУЩЕСТВА ДОМА:2022 год постройкиМатериалы стен: газоблок (400мм Д500), облицован кирпичом и металлическим сайдингомКровля выполнена из профнастила с полимерным покрытием;Межкомнатные перегородки из 100мм полнотелой гипсовой пазогребневой плиты-Двухкамерные окна Рехау с мультифункциональным покрытием (москитные сетки в комплекте), готовы откосы и подоконникиРадиаторы отопления в каждой комнате и теплые полы во всем доме;Качественная предчистовая отделка и утепленный потолокВ доме заведен газ, проведено электричество и заведены все коммуникацииЕсть функциональный чердакДом расположен на участке правильной формы (10 соток) на тупиковой улицеДороги микрорайона асфальтированы, сама улица отсыпана щебнемПросторное жилье, для создания вашего идеального дома, где вся семья будет чувствовать себя уютно. Без обременений, чистая продажа.ЗВОНИТЕ, договоримся о просмотре и выберем дату сделки Код пользователя: 177648Номер в базе: 5735703

Читать полностью

    Для того, чтобы купить 1-этажный коттедж по адресу: Ижевск, Ленинский, ул. Героя Ивана Клевцова, 44, позвоните по телефону +7 (912) 741-35-42. Торопитесь! Объявление №50016644294 о продаже одноэтажного коттеджа опубликовано 19 декабря 2025.

    Позвонить Написать
    6 499 999 Р82 710 $ или 70 030
    Агент
    +7 (912) 741-35-42
    Начать чат с агентом
    Похожие предложения
    Дом в Ижевск, проезд Маркина, 6 (55.5 м) - Фото 1
    Дом в Ижевск, проезд Маркина, 6 (55.5 м) - Фото 2
    1 этаж, общая площадь 55м², участок 9 соток

    Арт.Дом бревенчатый. 2018 года постройки. Два котла, все коммуникации в доме. Есть хорошая, добротная баня , Дворовые постройки. Участок сухой. Один взрослый собственник, без долгов и обременений.
    • 1 эт.
    • 55 м²
    • 9 сот.
    6 600 000 Р
    Агент
    +7 (903) Показать номер
    Посмотреть контакты
    Дом в Удмуртия, Завьяловский район, д. Подшивалово ул. Мартовская, 44 ... - Фото 1
    Дом в Удмуртия, Завьяловский район, д. Подшивалово ул. Мартовская, 44 ... - Фото 2
    1 этаж, общая площадь 87м², участок 8 соток

    Старт продаж в новом посёлке Светлый 3 от компании Зеон-Недвижимость Новый дом от застройщика 1. Работаем со всеми ипотечными программами: Семейная, ИТ, Комбо. Аккредитованы во всех банках 2. Помощь в одобрении ипотеки осуществляют сотрудники компании...
    • 1 эт.
    • 87 м²
    • 8 сот.
    6 585 000 Р
    Агент
    +7 (982) Показать номер
    Посмотреть контакты
    Дом в Удмуртия, Завьяловский район, д. Подшивалово ул. Тетерина, 44 ... - Фото 1
    Дом в Удмуртия, Завьяловский район, д. Подшивалово ул. Тетерина, 44 ... - Фото 2
    1 этаж, общая площадь 87м², участок 8 соток

    Старт продаж в новом посёлке Светлый 3 от компании Зеон-Недвижимость Новый дом с отделкой от застройщика 1. Работаем со всеми ипотечными программами: Семейная, ИТ, Комбо. Аккредитованы во всех банках 2. Помощь в одобрении ипотеки осуществляют сотрудники...
    • 1 эт.
    • 87 м²
    • 8 сот.
    6 525 000 Р
    Агент
    +7 (982) Показать номер
    Посмотреть контакты
    Дом в Удмуртия, Завьяловский район, д. Подшивалово ул. Мартовская, 56 ... - Фото 1
    Дом в Удмуртия, Завьяловский район, д. Подшивалово ул. Мартовская, 56 ... - Фото 2
    1 этаж, общая площадь 87м², участок 8 соток

    Старт продаж в новом посёлке Светлый 3 от компании Зеон-Недвижимость Новый дом от застройщика 1. Работаем со всеми ипотечными программами: Семейная, ИТ, Комбо. Аккредитованы во всех банках 2. Помощь в одобрении ипотеки осуществляют сотрудники компании...
    • 1 эт.
    • 87 м²
    • 8 сот.
    6 545 000 Р
    Агент
    +7 (982) Показать номер
    Посмотреть контакты
    Дом в Удмуртия, Завьяловский район, д. Подшивалово ул. Мартовская, 48 ... - Фото 1
    Дом в Удмуртия, Завьяловский район, д. Подшивалово ул. Мартовская, 48 ... - Фото 2
    1 этаж, общая площадь 87м², участок 8 соток

    Старт продаж в новом посёлке Светлый 3 от компании Зеон-Недвижимость Новый дом от застройщика 1. Работаем со всеми ипотечными программами: Семейная, ИТ, Комбо. Аккредитованы во всех банках 2. Помощь в одобрении ипотеки осуществляют сотрудники компании...
    • 1 эт.
    • 87 м²
    • 8 сот.
    6 510 000 Р
    Агент
    +7 (982) Показать номер
    Посмотреть контакты

    Не нашли подходящего объявления?

    Оставьте заявку, и наши риэлторы подберут купить дом в районе Ижевска

    (0)