Реализация объекта недвижимости приостановлена

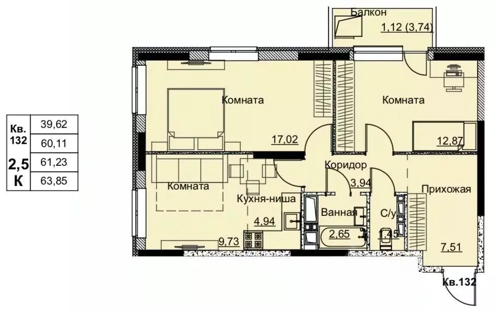
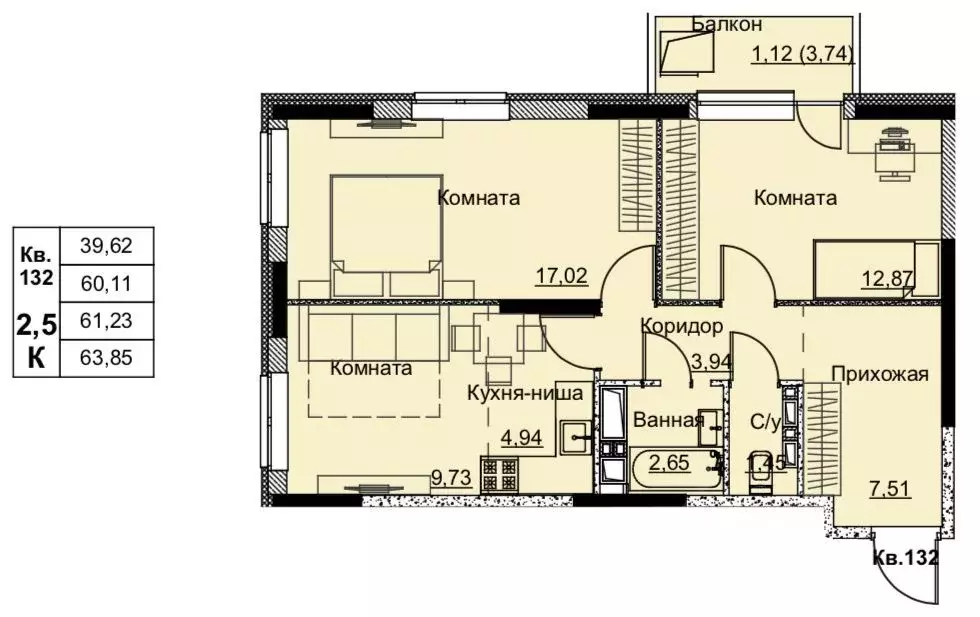
Информация о квартире

61.0 м2
Площадь
39.0 м2
Жилая
3
Комнаты
12
Этаж
17
Этажность

Дополнительная информация

Тип дома
монолит
Развернуть

3-к кв. Удмуртия, Ижевск Строитель жилрайон, 6-й мкр, (61.23 м)

Продаётся 3-комнатная квартира в строящемся доме (Дом 2), срок сдачи: IV-кв. 2025, общей площадью 61.23 кв.м., на 12 этаже. Жилой комплекс Притяжениеасположен в Ленинском районе города Ижевска на ул. Выборная. В пешей доступности находятся городские и частные детские сады, школы, медицинские центры, магазины, скверы и парки. Жилой комплекс Притяжение включает в себя два 17-этажных дома и продуманные общественные пространства.

Читать полностью

    Реализация объекта недвижимости приостановлена

    Не нашли подходящего объявления?

    Оставьте заявку, и наши риэлторы подберут квартиру в новостройке в районе Ижевска

    (0)