7 190 700 Р 88 530 $ или 76 630

Информация о квартире

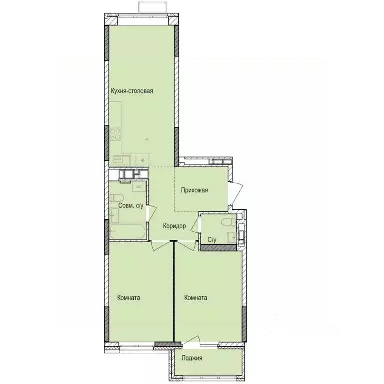
65 м2
Площадь
26 м2
Жилая
19 м2
Кухня
2
Комнаты
8
Этаж
17
Этажность
Развернуть
Агент
+7 (923) 894-52-08
Начать чат с агентом

2-к кв. Удмуртия, Ижевск Автопроизводство жилрайон, Норвежский Лес ...

Продаётся 2-комнатная квартира в строящемся доме (Дом 20), срок сдачи: III-кв. 2028, общей площадью 65.7 кв.м., на 8 этаже. Квартира от застройщика КОМОССТРОЙ. Покупка защищена ФЗ 214 с использованием эскроу счетов. Жилой комплекс Норвежский лес мы строим между улицами Цветочной и 10 лет Октября. Рядом есть сосновый бор, где зимой можно покататься на лыжах и подышать свежим лесным воздухом.Технологии строительства:Наружные стены выполняем из керамзитобетонного камня, минерального утеплителя и слоя штукатурки. Конструктив стены исключает вероятность промерзания перекрытий, обладает высокими теплоизоляционными свойствами, надежен и долговечен в эксплуатации.Разводка отопления по квартире периметральная (в отдельных случаях лучевая), в конструкции пола. Громоздкие стояки не будут портить ваши интерьеры.Высокие потолки типового жилого этажа, 2,7 м, создадут в вашей квартире ощущение объема и свободного пространства. На последних этажах мы предусмотрели повышенную высоту потолка 2,9 м.Входы в подъезды располагаем практически на уровне земли, что максимально удобно для транспортирования детских колясок и велосипедов.В каждой секции устанавливаем по два лифта: грузовой и пассажирский. Стильные и быстрые, они с комфортом поднимут вас до нужного этажаДворы:Двор жилого комплекса Норвежский Лес мы проектируем, как уютное место для прогулок, занятий спортом, общения и отдыха всей семьей Во дворах мы устанавливаем современные скамейки с USB-портами для зарядки гаджетов и Wi-Fi.В отделке дворовой территории используем только натуральные материалы. Многие архитектурные элементы выполняем из натурального, подготовленного к нашим климатическим условиям дерева. Все гостевые парковки располагаются по внешнему периметру комплекса. Доступ автотранспорта во двор запрещен.Отделка:До передачи квартиры собственнику, в квартире мы выполняем все капитальные и грязные работы.Поверхности стен из керамзитобетонного камня и бетона штукатурим сухими смесями. На гипсокартонных стенах шпаклюем стыки. Вам остается только поклеить обои по вашему вкусу.По дополнительному соглашению мы можем выполнить в вашей квартире чистовую отделку по нашему типовому проекту.Все вопросы можно уточнить в отделе продаж по телефону, указанному в объявлении. Звоните

Читать полностью
    Позвонить Написать
    7 190 700 Р88 530 $ или 76 630
    Агент
    +7 (923) 894-52-08
    Начать чат с агентом
    Похожие предложения в Ижевске
    2-к кв. Удмуртия, Ижевск Автопроизводство жилрайон, Норвежский Лес ... - Фото 1
    2-к кв. Удмуртия, Ижевск Автопроизводство жилрайон, Норвежский Лес ... - Фото 2
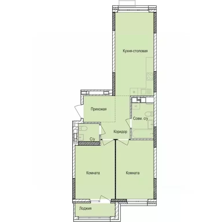
    2-комнатная квартира, общая площадь 65м², жилая 26м², кухня 19м²

    Продаётся 2-комнатная квартира в строящемся доме (Дом 20), срок сдачи: III-кв. 2028, общей площадью 65.5 кв.м., на 6 этаже. Квартира от застройщика КОМОССТРОЙ. Покупка защищена ФЗ 214 с использованием эскроу счетов. Жилой комплекс Норвежский лес мы...
    • 65 м²
    • 2-ком
    • 6/17 эт.
    7 190 700 Р
    Агент
    +7 (923) Показать номер
    Посмотреть контакты
    2-к кв. Удмуртия, Ижевск Автопроизводство жилрайон, Норвежский Лес ... - Фото 1
    2-к кв. Удмуртия, Ижевск Автопроизводство жилрайон, Норвежский Лес ... - Фото 2
    2-комнатная квартира, общая площадь 65м², жилая 27м², кухня 19м²

    Продаётся 2-комнатная квартира в строящемся доме (Дом 20), срок сдачи: III-кв. 2028, общей площадью 65.9 кв.м., на 15 этаже. Квартира от застройщика КОМОССТРОЙ. Покупка защищена ФЗ 214 с использованием эскроу счетов. Жилой комплекс Норвежский лес мы...
    • 65 м²
    • 2-ком
    • 15/17 эт.
    7 242 200 Р
    Агент
    +7 (923) Показать номер
    Посмотреть контакты
    2-к кв. Удмуртия, Ижевск Автопроизводство жилрайон, Норвежский Лес ... - Фото 1
    2-к кв. Удмуртия, Ижевск Автопроизводство жилрайон, Норвежский Лес ... - Фото 2
    2-комнатная квартира, общая площадь 65м², жилая 26м², кухня 19м²

    Продаётся 2-комнатная квартира в строящемся доме (Дом 20), срок сдачи: III-кв. 2028, общей площадью 65.7 кв.м., на 17 этаже. Квартира от застройщика КОМОССТРОЙ. Покупка защищена ФЗ 214 с использованием эскроу счетов. Жилой комплекс Норвежский лес мы...
    • 65 м²
    • 2-ком
    • 17/17 эт.
    7 293 700 Р
    Агент
    +7 (923) Показать номер
    Посмотреть контакты
    2-к кв. Удмуртия, Ижевск Автопроизводство жилрайон, Норвежский Лес ... - Фото 1
    2-к кв. Удмуртия, Ижевск Автопроизводство жилрайон, Норвежский Лес ... - Фото 2
    2-комнатная квартира, общая площадь 65м², жилая 26м², кухня 19м²

    Продаётся 2-комнатная квартира в строящемся доме (Дом 20), срок сдачи: III-кв. 2028, общей площадью 65.7 кв.м., на 15 этаже. Квартира от застройщика КОМОССТРОЙ. Покупка защищена ФЗ 214 с использованием эскроу счетов. Жилой комплекс Норвежский лес мы...
    • 65 м²
    • 2-ком
    • 15/17 эт.
    7 242 200 Р
    Агент
    +7 (923) Показать номер
    Посмотреть контакты
    2-к кв. Удмуртия, Ижевск Автопроизводство жилрайон, Норвежский Лес ... - Фото 1
    2-к кв. Удмуртия, Ижевск Автопроизводство жилрайон, Норвежский Лес ... - Фото 2
    2-комнатная квартира, общая площадь 65м², жилая 26м², кухня 19м²

    Продаётся 2-комнатная квартира в строящемся доме (Дом 20), срок сдачи: III-кв. 2028, общей площадью 65.5 кв.м., на 7 этаже. Квартира от застройщика КОМОССТРОЙ. Покупка защищена ФЗ 214 с использованием эскроу счетов. Жилой комплекс Норвежский лес мы...
    • 65 м²
    • 2-ком
    • 7/17 эт.
    7 190 700 Р
    Агент
    +7 (923) Показать номер
    Посмотреть контакты

    Не нашли подходящего объявления?

    Оставьте заявку, и наши риэлторы подберут квартиру в новостройке в районе Ижевска

    (0)