6 493 100 Р 79 940 $ или 69 200

Информация о квартире

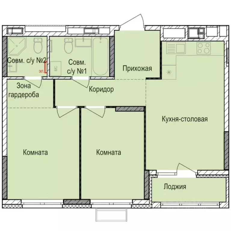
57 м2
Площадь
21 м2
Жилая
16 м2
Кухня
2
Комнаты
13
Этаж
17
Этажность
Развернуть
Агент
+7 (923) 894-52-08
Начать чат с агентом

2-к кв. Удмуртия, Ижевск Автопроизводство жилрайон, Норвежский Лес ...

Продаётся 2-комнатная квартира в строящемся доме (Дом 20), срок сдачи: III-кв. 2028, общей площадью 57.7 кв.м., на 13 этаже. Квартира от застройщика КОМОССТРОЙ. Покупка защищена ФЗ 214 с использованием эскроу счетов. Жилой комплекс Норвежский лес мы строим между улицами Цветочной и 10 лет Октября. Рядом есть сосновый бор, где зимой можно покататься на лыжах и подышать свежим лесным воздухом.Технологии строительства:Наружные стены выполняем из керамзитобетонного камня, минерального утеплителя и слоя штукатурки. Конструктив стены исключает вероятность промерзания перекрытий, обладает высокими теплоизоляционными свойствами, надежен и долговечен в эксплуатации.Разводка отопления по квартире периметральная (в отдельных случаях лучевая), в конструкции пола. Громоздкие стояки не будут портить ваши интерьеры.Высокие потолки типового жилого этажа, 2,7 м, создадут в вашей квартире ощущение объема и свободного пространства. На последних этажах мы предусмотрели повышенную высоту потолка 2,9 м.Входы в подъезды располагаем практически на уровне земли, что максимально удобно для транспортирования детских колясок и велосипедов.В каждой секции устанавливаем по два лифта: грузовой и пассажирский. Стильные и быстрые, они с комфортом поднимут вас до нужного этажаДворы:Двор жилого комплекса Норвежский Лес мы проектируем, как уютное место для прогулок, занятий спортом, общения и отдыха всей семьей Во дворах мы устанавливаем современные скамейки с USB-портами для зарядки гаджетов и Wi-Fi.В отделке дворовой территории используем только натуральные материалы. Многие архитектурные элементы выполняем из натурального, подготовленного к нашим климатическим условиям дерева. Все гостевые парковки располагаются по внешнему периметру комплекса. Доступ автотранспорта во двор запрещен.Отделка:До передачи квартиры собственнику, в квартире мы выполняем все капитальные и грязные работы.Поверхности стен из керамзитобетонного камня и бетона штукатурим сухими смесями. На гипсокартонных стенах шпаклюем стыки. Вам остается только поклеить обои по вашему вкусу.По дополнительному соглашению мы можем выполнить в вашей квартире чистовую отделку по нашему типовому проекту.Все вопросы можно уточнить в отделе продаж по телефону, указанному в объявлении. Звоните

Читать полностью
    Позвонить Написать
    6 493 100 Р79 940 $ или 69 200
    Агент
    +7 (923) 894-52-08
    Начать чат с агентом
    Похожие предложения в Ижевске
    2-к кв. Удмуртия, Ижевск Автопроизводство жилрайон, Норвежский Лес ... - Фото 1
    2-к кв. Удмуртия, Ижевск Автопроизводство жилрайон, Норвежский Лес ... - Фото 2
    2-комнатная квартира, общая площадь 58м², жилая 23м², кухня 18м²

    Продаётся 2-комнатная квартира в строящемся доме (Дом 20), срок сдачи: III-кв. 2028, общей площадью 58.3 кв.м., на 11 этаже. Квартира от застройщика КОМОССТРОЙ. Покупка защищена ФЗ 214 с использованием эскроу счетов. Жилой комплекс Норвежский лес мы...
    • 58 м²
    • 2-ком
    • 11/17 эт.
    6 555 200 Р
    Агент
    +7 (923) Показать номер
    Посмотреть контакты
    2-к кв. Удмуртия, Ижевск Автопроизводство жилрайон, Норвежский Лес ... - Фото 1
    2-к кв. Удмуртия, Ижевск Автопроизводство жилрайон, Норвежский Лес ... - Фото 2
    2-комнатная квартира, общая площадь 57м², жилая 21м², кухня 16м²

    Продаётся 2-комнатная квартира в строящемся доме (Дом 20), срок сдачи: III-кв. 2028, общей площадью 57.7 кв.м., на 16 этаже. Квартира от застройщика КОМОССТРОЙ. Покупка защищена ФЗ 214 с использованием эскроу счетов. Жилой комплекс Норвежский лес мы...
    • 57 м²
    • 2-ком
    • 16/17 эт.
    6 493 100 Р
    Агент
    +7 (923) Показать номер
    Посмотреть контакты
    2-к кв. Удмуртия, Ижевск Автопроизводство жилрайон, Норвежский Лес ... - Фото 1
    2-к кв. Удмуртия, Ижевск Автопроизводство жилрайон, Норвежский Лес ... - Фото 2
    2-комнатная квартира, общая площадь 58м², жилая 23м², кухня 18м²

    Продаётся 2-комнатная квартира в строящемся доме (Дом 20), срок сдачи: III-кв. 2028, общей площадью 58.3 кв.м., на 14 этаже. Квартира от застройщика КОМОССТРОЙ. Покупка защищена ФЗ 214 с использованием эскроу счетов. Жилой комплекс Норвежский лес мы...
    • 58 м²
    • 2-ком
    • 14/17 эт.
    6 555 200 Р
    Агент
    +7 (923) Показать номер
    Посмотреть контакты
    2-к кв. Удмуртия, Ижевск Автопроизводство жилрайон, Норвежский Лес ... - Фото 1
    2-к кв. Удмуртия, Ижевск Автопроизводство жилрайон, Норвежский Лес ... - Фото 2
    2-комнатная квартира, общая площадь 57м², жилая 21м², кухня 16м²

    Продаётся 2-комнатная квартира в строящемся доме (Дом 20), срок сдачи: III-кв. 2028, общей площадью 57.7 кв.м., на 11 этаже. Квартира от застройщика КОМОССТРОЙ. Покупка защищена ФЗ 214 с использованием эскроу счетов. Жилой комплекс Норвежский лес мы...
    • 57 м²
    • 2-ком
    • 11/17 эт.
    6 493 100 Р
    Агент
    +7 (923) Показать номер
    Посмотреть контакты
    2-к кв. Удмуртия, Ижевск Автопроизводство жилрайон, Норвежский Лес ... - Фото 1
    2-к кв. Удмуртия, Ижевск Автопроизводство жилрайон, Норвежский Лес ... - Фото 2
    2-комнатная квартира, общая площадь 57м², жилая 22м², кухня 17м²

    Продаётся 2-комнатная квартира в строящемся доме (Дом 20), срок сдачи: III-кв. 2028, общей площадью 57.3 кв.м., на 14 этаже. Квартира от застройщика КОМОССТРОЙ. Покупка защищена ФЗ 214 с использованием эскроу счетов. Жилой комплекс Норвежский лес мы...
    • 57 м²
    • 2-ком
    • 14/17 эт.
    6 441 900 Р
    Агент
    +7 (923) Показать номер
    Посмотреть контакты

    Не нашли подходящего объявления?

    Оставьте заявку, и наши риэлторы подберут квартиру в новостройке в районе Ижевска

    (0)