6 687 310 Р 82 430 $ или 70 320

Информация о квартире

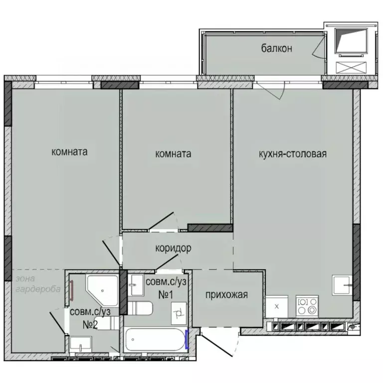
58 м2
Площадь
24 м2
Жилая
18 м2
Кухня
2
Комнаты
14
Этаж
16
Этажность
Развернуть
Агент
+7 (980) 976-82-89
Начать чат с агентом

2-к кв. Удмуртия, Ижевск Культбаза жилрайон, 8-й мкр, Ежевика жилой ...

Продаётся 2-комнатная квартира в строящемся доме (Дом 10), срок сдачи: III-кв. 2028, общей площадью 58.1 кв.м., на 14 этаже. Объявление от застройщика КОМОССТРОЙ. Покупка защищена ФЗ 214 с использованием эскроу счетов.Ежевика - это новый микрорайон на улице 10 лет Октября Он будет располагаться у опушки соснового леса, рядом с бизнес-центром Нова-Парк .Сердце микрорайона - центральная площадь. На 3130 м2 территории будут расположены: современные детские игровые площадки для всех возрастов, оборудованы места отдыха с беседками и гамаками, торговый центр и множество кафе.Для создания уюта внутри жилого комплекса мы высаживаем почти 60 000 м2 зеленых насаждений: газоны, многолетние цветущие кустарники и полноразмерные деревья Квартира:Вы можете выбрать два варианта отделки квартиры: предчистовую, если вы хотите самостоятельно заняться дизайном, или чистовую, если вам нужно вселиться в квартиру как можно быстрее. Отделочные материалы, применяемые нами в строительстве, вы можете посмотреть в шоу-руме нашего офиса продаж записавшись на посещение по телефону в объявлении.Предчистовая отделка:До передачи квартиры собственнику мы выполняем в ней все капитальные и грязные работы. Стены подготавливаем под оклейку обоями. На полу выполняем полусухую стяжку со звукоизолирующим слоем. Предусмотрена периметральная поквартирная разводка труб отопления в конструкции пола. Устанавливаем стильные стальные панельные радиаторы с нижней подводкой. Устанавливаем клапаны приточной вентиляции, обеспечивающие оптимальный режим притока свежего воздуха в помещение. Приточный клапан оснащен системами шумоизоляции и фильтрации воздуха.Устанавливаем надежные металлические входные двери с тепло- и звукоизоляцией. Выполняем прокладку электросетей, устанавливаем электросчетчики, одну розетку и один выключатель в прихожей.Все вопросы можно уточнить в отделе продаж по телефону. Звоните

Читать полностью
    Позвонить Написать
    6 687 310 Р82 430 $ или 70 320
    Агент
    +7 (980) 976-82-89
    Начать чат с агентом
    Похожие предложения в Ижевске
    2-к кв. Удмуртия, Ижевск Культбаза жилрайон, 8-й мкр, Ежевика жилой ... - Фото 1
    2-к кв. Удмуртия, Ижевск Культбаза жилрайон, 8-й мкр, Ежевика жилой ... - Фото 2
    2-комнатная квартира, общая площадь 59м², жилая 27м², кухня 18м²

    Продаётся 2-комнатная квартира в строящемся доме (Дом 10), срок сдачи: III-кв. 2028, общей площадью 59.6 кв.м., на 13 этаже. Объявление от застройщика КОМОССТРОЙ. Покупка защищена ФЗ 214 с использованием эскроу счетов.Ежевика - это новый микрорайон на...
    • 59 м²
    • 2-ком
    • 13/16 эт.
    6 734 800 Р
    Агент
    +7 (980) Показать номер
    Посмотреть контакты
    2-к кв. Удмуртия, Ижевск Культбаза жилрайон, 8-й мкр, Ежевика жилой ... - Фото 1
    2-к кв. Удмуртия, Ижевск Культбаза жилрайон, 8-й мкр, Ежевика жилой ... - Фото 2
    2-комнатная квартира, общая площадь 59м², жилая 27м², кухня 18м²

    Продаётся 2-комнатная квартира в строящемся доме (Дом 10), срок сдачи: III-кв. 2028, общей площадью 59.6 кв.м., на 11 этаже. Объявление от застройщика КОМОССТРОЙ. Покупка защищена ФЗ 214 с использованием эскроу счетов.Ежевика - это новый микрорайон на...
    • 59 м²
    • 2-ком
    • 11/16 эт.
    6 734 800 Р
    Агент
    +7 (980) Показать номер
    Посмотреть контакты
    2-к кв. Удмуртия, Ижевск Культбаза жилрайон, 8-й мкр, Ежевика жилой ... - Фото 1
    2-к кв. Удмуртия, Ижевск Культбаза жилрайон, 8-й мкр, Ежевика жилой ... - Фото 2
    2-комнатная квартира, общая площадь 59м², жилая 27м², кухня 18м²

    Продаётся 2-комнатная квартира в строящемся доме (Дом 10), срок сдачи: III-кв. 2028, общей площадью 59.6 кв.м., на 8 этаже. Объявление от застройщика КОМОССТРОЙ. Покупка защищена ФЗ 214 с использованием эскроу счетов.Ежевика - это новый микрорайон на...
    • 59 м²
    • 2-ком
    • 8/16 эт.
    6 685 640 Р
    Агент
    +7 (980) Показать номер
    Посмотреть контакты
    2-к кв. Удмуртия, Ижевск Культбаза жилрайон, 8-й мкр, Ежевика жилой ... - Фото 1
    2-к кв. Удмуртия, Ижевск Культбаза жилрайон, 8-й мкр, Ежевика жилой ... - Фото 2
    2-комнатная квартира, общая площадь 59м², жилая 27м², кухня 18м²

    Продаётся 2-комнатная квартира в строящемся доме (Дом 10), срок сдачи: III-кв. 2028, общей площадью 59.5 кв.м., на 15 этаже. Объявление от застройщика КОМОССТРОЙ. Покупка защищена ФЗ 214 с использованием эскроу счетов.Ежевика - это новый микрорайон на...
    • 59 м²
    • 2-ком
    • 15/16 эт.
    6 734 800 Р
    Агент
    +7 (980) Показать номер
    Посмотреть контакты
    2-к кв. Удмуртия, Ижевск Культбаза жилрайон, 8-й мкр, Ежевика жилой ... - Фото 1
    2-к кв. Удмуртия, Ижевск Культбаза жилрайон, 8-й мкр, Ежевика жилой ... - Фото 2
    2-комнатная квартира, общая площадь 59м², жилая 27м², кухня 18м²

    Продаётся 2-комнатная квартира в строящемся доме (Дом 10), срок сдачи: III-кв. 2028, общей площадью 59.6 кв.м., на 12 этаже. Объявление от застройщика КОМОССТРОЙ. Покупка защищена ФЗ 214 с использованием эскроу счетов.Ежевика - это новый микрорайон на...
    • 59 м²
    • 2-ком
    • 12/16 эт.
    6 734 800 Р
    Агент
    +7 (980) Показать номер
    Посмотреть контакты

    Не нашли подходящего объявления?

    Оставьте заявку, и наши риэлторы подберут квартиру в новостройке в районе Ижевска

    (0)