Реализация объекта недвижимости приостановлена

Информация о квартире

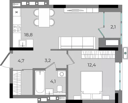
42.0 м2
Площадь
12.0 м2
Жилая
17.0 м2
Кухня
1
Комната
11
Этаж
16
Этажность
Развернуть

1-к кв. Удмуртия, Ижевск Северо-Западный жилрайон, 2-й мкр, Новый ...

Восьмой дом-квартал состоит из четырех корпусов, расположенных на стилобате — общем первом этаже дома, на котором располагается двор. Внутри стилобата — двухуровневый паркинг, кладовые и коммерческие помещения. Каждый корпус имеет свой характер. Совсем, как люди, которые будут жить в них.

Читать полностью

    Реализация объекта недвижимости приостановлена

    Не нашли подходящего объявления?

    Оставьте заявку, и наши риэлторы подберут квартиру в новостройке в районе Ижевска

    (0)