Реализация объекта недвижимости приостановлена

Информация о квартире

59.0 м2
Площадь
23.0 м2
Жилая
18.0 м2
Кухня
2
Комнаты
3
Этаж
17
Этажность
Развернуть

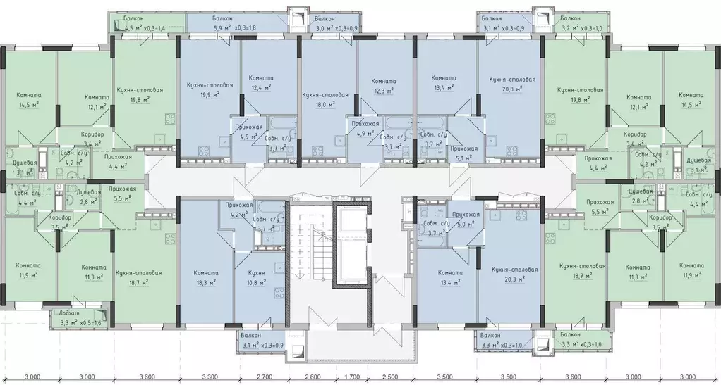
2-к кв. Удмуртия, Ижевск ул. Холмогорова, 89 (59.62 м)

Продаётся 2-комнатная квартира в сданном доме (Дом 89), срок сдачи: IV-кв. 2024, общей площадью 59.1 кв.м., на 3 этаже. Дом расположен в микрорайоне Север Октябрьского района города Ижевска, за ЦД СИТИ, на улице Холмогорова. Отличительная особенность дома - на этаже располагаются всего по 4 квартиры, что крайне редко встречается в современных новостройках. Квартиры крупногабаритные, с повышенной высотой потолков - 2,7 метра. Окна, выходящие на балконы и лоджии выполняются панорамными, т.е. высотой практически соответствующей высоте от пола до потолка. Выше 9 этажа предусмотрено панорамное остекление лоджий и балконов. С 1-ого по 9 этажи остекление балконов и лоджий осуществляется от 60-сантиметровой кирпичной кладки. На первом этаже здания предусмотрено помещение для консьержа, колясочная, комната уборочного инвентаря (по решению жильцов может использоваться как дополнительная колясочная). Входные группы оборудованы пандусами для удобства малоподвижных групп населения. На участке предусмотрены площадка для игр детей дошкольного и младшего школьного возраста, площадка отдыха взрослого населения, площадка для хозяйственных целей. Всего в комплексе предусмотрено 207 парковочных мест на наземных гостевых стоянках и 249 мест в подземных паркингах. Свободная от застройки территория участка озеленяется посевом многолетних трав и посадкой деревьев и кустарников ценных пород.

Читать полностью

    Реализация объекта недвижимости приостановлена

    Не нашли подходящего объявления?

    Оставьте заявку, и наши риэлторы подберут квартиру в новостройке в районе Ижевска

    (0)