6 806 800 Р 84 050 $ или 71 970

Информация о квартире

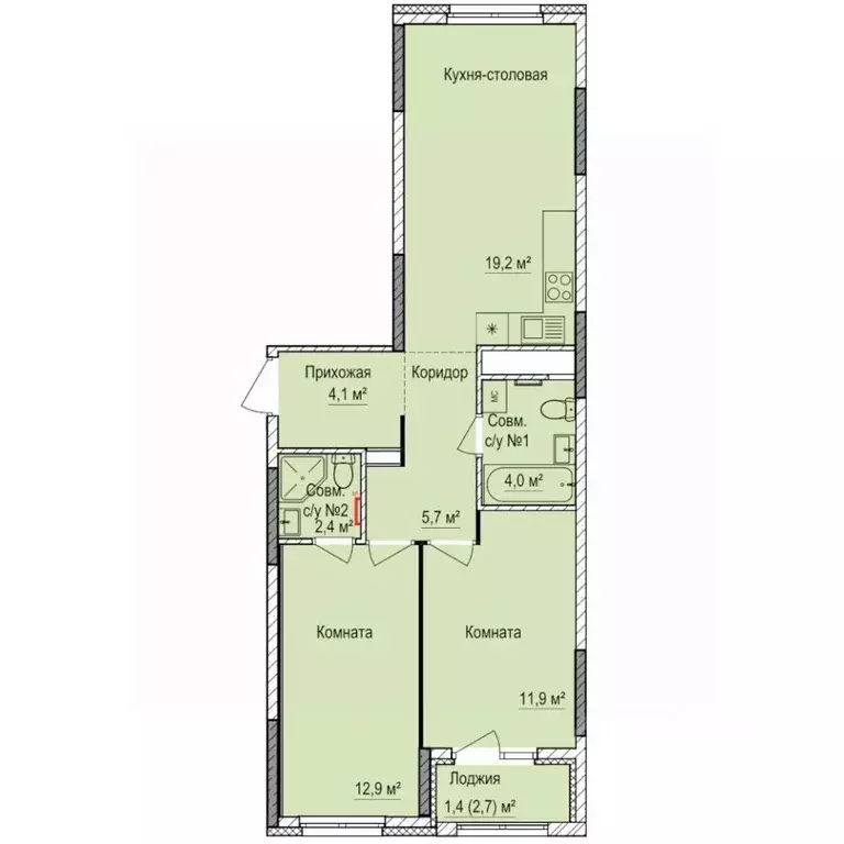
61 м2
Площадь
2
Комнаты
7
Этаж
17
Этажность
Развернуть
Агент
+7 (992) 253-16-09
Начать чат с агентом

2-к кв. Удмуртия, Ижевск Буммаш жилрайон, Покровский жилой комплекс ...

Продаётся 2-комнатная квартира в строящемся доме (Дом 7), срок сдачи: III-кв. 2028, общей площадью 61.6 кв.м., на 7 этаже. Квартира от застройщика КОМОССТРОЙ. Покупка защищена ФЗ 214 с использованием эскроу счетов. ЖК Покровский на улице 10 лет Октября - по-настоящему семейный жилой комплекс В шаговой доступности находятся:- Школы 72 и 93;- Детские сады 52, 54, 63, 101 и 238;- Торговые центры Эльгрин , Омега и Столица ;- Фитнес клубы Платформа и Омега-фитнес .В проекте жилого комплекса мы предусмотрели большое количество детских и спортивных площадок, зеленую аллею для прогулок с элементами ландшафтного дизайна, широкие дворовые проезды, новый, расширенный пакет системы Умный дом .Квартира:Мы выполняем все капитальные и грязные работы до передачи квартиры собственнику. Стены подготавливаем под оклейку обоями. На полу выполняем полусухую стяжку со звукоизолирующим слоем.Предусмотрена периметральная поквартирная разводка труб отопления в конструкции пола. Устанавливаем стильные стальные панельные радиаторы с нижней подводкой.Устанавливаем клапаны приточной вентиляции, обеспечивающие оптимальный режим притока свежего воздуха в помещение. Приточный клапан оснащен системами шумоизоляции и фильтрации воздуха. Устанавливаем надежные металлические входные двери с тепло- и звукоизоляцией. Выполняем прокладку электросетей, устанавливаем электросчетчики, одну розетку и один выключатель в прихожей.По дополнительному соглашению мы можем выполнить в вашей квартире чистовую отделку по нашему типовому проекту. Все вопросы можно уточнить в отделе продаж по телефону, указанному в объявлении. Звоните

Читать полностью
    Позвонить Написать
    6 806 800 Р84 050 $ или 71 970
    Агент
    +7 (992) 253-16-09
    Начать чат с агентом
    Похожие предложения в Ижевске
    2-к кв. Удмуртия, Ижевск Столичный мкр, Новый Восход жилой комплекс ... - Фото 1
    2-к кв. Удмуртия, Ижевск Столичный мкр, Новый Восход жилой комплекс ... - Фото 2
    2-комнатная квартира, общая площадь 58м², жилая 28м², кухня 12м²

    Новый восход — современный жилой комплекс в динамично развивающемся районе Ижевска. Четыре дома переменной этажности расположатся между Воткинским шоссе и улицей Кунгурцева. До района легко добраться на автомобиле и общественном транспорте.
    • 58 м²
    • 2-ком
    • 10/24 эт.
    6 793 729 Р
    Агент
    +7 (980) Показать номер
    Посмотреть контакты
    2-к кв. Удмуртия, Ижевск Столичный мкр, Новый Восход жилой комплекс ... - Фото 1
    2-к кв. Удмуртия, Ижевск Столичный мкр, Новый Восход жилой комплекс ... - Фото 2
    2-комнатная квартира, общая площадь 58м², жилая 28м², кухня 12м²

    Новый восход — современный жилой комплекс в динамично развивающемся районе Ижевска. Четыре дома переменной этажности расположатся между Воткинским шоссе и улицей Кунгурцева. До района легко добраться на автомобиле и общественном транспорте.
    • 58 м²
    • 2-ком
    • 11/24 эт.
    6 793 729 Р
    Агент
    +7 (980) Показать номер
    Посмотреть контакты
    2-к кв. Удмуртия, Ижевск Столичный мкр, Новый Восход жилой комплекс ... - Фото 1
    2-к кв. Удмуртия, Ижевск Столичный мкр, Новый Восход жилой комплекс ... - Фото 2
    2-комнатная квартира, общая площадь 58м², жилая 28м², кухня 12м²

    Новый восход — современный жилой комплекс в динамично развивающемся районе Ижевска. Четыре дома переменной этажности расположатся между Воткинским шоссе и улицей Кунгурцева. До района легко добраться на автомобиле и общественном транспорте.
    • 58 м²
    • 2-ком
    • 12/24 эт.
    6 793 729 Р
    Агент
    +7 (980) Показать номер
    Посмотреть контакты
    2-к кв. Удмуртия, Ижевск Воткинское ш., 61 (44.8 м) - Фото 1
    2-к кв. Удмуртия, Ижевск Воткинское ш., 61 (44.8 м) - Фото 2
    2-комнатная квартира, общая площадь 44м², жилая 29м², кухня 6м²

    СЕКЦИЯ СДАНА. Началась передача ключей дольщикам Квартира комфорт-класса в предчистовой отделке ЖК PЕГАРД . Первые три секции дома сданы досрочно. Показы квартир каждый день Запишитесь на бесплатную экскурсию: оцените район, квартал, двор и свою будущую...
    • 44 м²
    • 2-ком
    • 13/17 эт.
    6 800 000 Р
    Агент
    +7 (986) Показать номер
    Посмотреть контакты
    2-к кв. Удмуртия, Ижевск ул. Имени Репина, 35Ак3 (61.0 м) - Фото 1
    2-к кв. Удмуртия, Ижевск ул. Имени Репина, 35Ак3 (61.0 м) - Фото 2
    2-комнатная квартира, общая площадь 61м², жилая 23м², кухня 18м²

    Продаётся 2-комнатная квартира в сданном доме (Дом 35Ак3), срок сдачи: IV-кв. 2024, общей площадью 61.4 кв.м., на 1 этаже. Представляем новый жилой комплекс Утро на Репина Утро на Репина — это 4 дома переменной этажности от 10 до 17 этажей. Комбинированный...
    • 61 м²
    • 2-ком
    • 1/17 эт.
    6 791 000 Р
    Агент
    +7 (930) Показать номер
    Посмотреть контакты

    Не нашли подходящего объявления?

    Оставьте заявку, и наши риэлторы подберут квартиру в новостройке в районе Ижевска

    (0)