5 001 000 Р 61 750 $ или 52 870

Информация о квартире

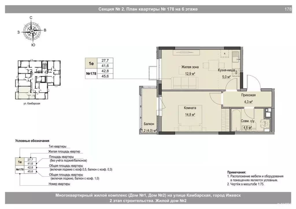
42 м2
Площадь
5 м2
Кухня
студия
Комнат
6
Этаж
18
Этажность
Развернуть
Агент
+7 (962) 468-24-45
Начать чат с агентом

Студия Удмуртия, Ижевск Игринская ул. (42.8 м)

ЖК Крылья — это комплекс, который объединяет в себе современные технологичные инженерные решения и стильную архитектуру.Жилой комплекс находится в Первомайском районе города Ижевск с развитой инфраструктурой и активно развивающейся жилой застройкой.Преимущества локации:Современный развивающийся район.Рядом транспортная остановка.Вблизи расположены дет/сад 280 и 11, школа 74.Гипермаркет Лента и строительный магазин Лемана ПРО .Библиотека им. В.Г. Короленко.Многофункциональный двор: мы создали пространство, где каждый сможет найти занятие по душе. Уголки для отдыха и активности, уединения и общения, и все вместе они составляют приватную среду, которая становится органичным продолжением дома.Разнообразие игровых зон и тематических площадок для детей разного возраста: качели, карусели и интерактивные зоны.В жилом комплексе созданы все условия для спорта и активного образа жизни. В благоустроенном дворе с детской и спортивными площадками можно заниматься уличной гимнастикой, разминаться на турниках или же просто спокойно прогуляться по дорожкам среди зелени и цветов. Островки отдыха с удобными скамейками в окружении зелени позволят расслабиться и снять стресс. А ландшафтный дизайн с яркими клумбами и цветниками сделают прогулки приятными и поднимут настроение.огороженная территориявходные группы на уровне землидвор без машинсистема видеонаблюдения по периметрусовременное благоустройство придомовой территориикачественные материалысистема Умный Дом дизайнерские холлысовременные бесшумные лифтыпросторные кладовыеквартиры с авторскими планировкамиподземная парковканаземная парковкаЖК Крылья жизнь с размахом

Читать полностью
    Позвонить Написать
    5 001 000 Р61 750 $ или 52 870
    Агент
    +7 (962) 468-24-45
    Начать чат с агентом
    Похожие предложения в Ижевске
    2-к кв. Удмуртия, Ижевск Игринская ул., 12 (45.6 м) - Фото 1
    2-к кв. Удмуртия, Ижевск Игринская ул., 12 (45.6 м) - Фото 2
    2-комнатная квартира, общая площадь 45м², кухня 5м²

    ЖК Крылья — это комплекс, который объединяет в себе современные технологичные инженерные решения и стильную архитектуру.Жилой комплекс находится в Первомайском районе города Ижевск с развитой инфраструктурой и активно развивающейся жилой застройкой.Преимущества...
    • 45 м²
    • 2-ком
    • 1/18 эт.
    4 983 000 Р
    Агент
    +7 (962) Показать номер
    Посмотреть контакты
    Студия Удмуртия, Ижевск Игринская ул. (39.7 м) - Фото 1
    Студия Удмуртия, Ижевск Игринская ул. (39.7 м) - Фото 2
    студия, общая площадь 39м², кухня 5м²

    ЖК Крылья — это комплекс, который объединяет в себе современные технологичные инженерные решения и стильную архитектуру.Жилой комплекс находится в Первомайском районе города Ижевск с развитой инфраструктурой и активно развивающейся жилой застройкой.Преимущества...
    • 39 м²
    • студия-ком
    • 17/18 эт.
    4 923 000 Р
    Агент
    +7 (962) Показать номер
    Посмотреть контакты
    Студия Удмуртия, Ижевск Игринская ул. (39.8 м) - Фото 1
    Студия Удмуртия, Ижевск Игринская ул. (39.8 м) - Фото 2
    студия, общая площадь 39м², кухня 5м²

    ЖК Крылья — это комплекс, который объединяет в себе современные технологичные инженерные решения и стильную архитектуру.Жилой комплекс находится в Первомайском районе города Ижевск с развитой инфраструктурой и активно развивающейся жилой застройкой.Преимущества...
    • 39 м²
    • студия-ком
    • 17/18 эт.
    4 935 000 Р
    Агент
    +7 (962) Показать номер
    Посмотреть контакты
    Студия Удмуртия, Ижевск Игринская ул. (39.8 м) - Фото 1
    Студия Удмуртия, Ижевск Игринская ул. (39.8 м) - Фото 2
    студия, общая площадь 39м², кухня 5м²

    ЖК Крылья — это комплекс, который объединяет в себе современные технологичные инженерные решения и стильную архитектуру.Жилой комплекс находится в Первомайском районе города Ижевск с развитой инфраструктурой и активно развивающейся жилой застройкой.Преимущества...
    • 39 м²
    • студия-ком
    • 17/18 эт.
    4 935 000 Р
    Агент
    +7 (962) Показать номер
    Посмотреть контакты
    2-к кв. Удмуртия, Ижевск Игринская ул., 12 (45.6 м) - Фото 1
    2-к кв. Удмуртия, Ижевск Игринская ул., 12 (45.6 м) - Фото 2
    2-комнатная квартира, общая площадь 45м², кухня 5м²

    ЖК Крылья — это комплекс, который объединяет в себе современные технологичные инженерные решения и стильную архитектуру.Жилой комплекс находится в Первомайском районе города Ижевск с развитой инфраструктурой и активно развивающейся жилой застройкой.Преимущества...
    • 45 м²
    • 2-ком
    • 4/18 эт.
    5 082 000 Р
    Агент
    +7 (962) Показать номер
    Посмотреть контакты

    Не нашли подходящего объявления?

    Оставьте заявку, и наши риэлторы подберут квартиру в новостройке в районе Ижевска

    (0)