7 299 000 Р 89 790 $ или 77 490

Информация о квартире

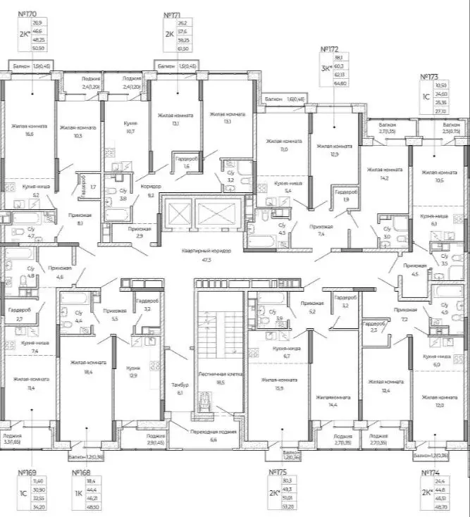
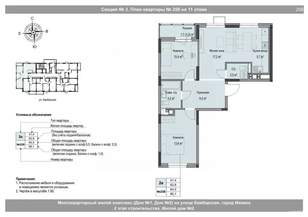
64 м2
Площадь
5 м2
Кухня
2
Комнаты
12
Этаж
18
Этажность
Развернуть
Агент
+7 (962) 468-24-45
Начать чат с агентом

2-к кв. Удмуртия, Ижевск Игринская ул. (64.5 м)

ЖК Крылья — это комплекс, который объединяет в себе современные технологичные инженерные решения и стильную архитектуру.Жилой комплекс находится в Первомайском районе города Ижевск с развитой инфраструктурой и активно развивающейся жилой застройкой.Преимущества локации:Современный развивающийся район.Рядом транспортная остановка.Вблизи расположены дет/сад 280 и 11, школа 74.Гипермаркет Лента и строительный магазин Лемана ПРО .Библиотека им. В.Г. Короленко.Многофункциональный двор: мы создали пространство, где каждый сможет найти занятие по душе. Уголки для отдыха и активности, уединения и общения, и все вместе они составляют приватную среду, которая становится органичным продолжением дома.Разнообразие игровых зон и тематических площадок для детей разного возраста: качели, карусели и интерактивные зоны.В жилом комплексе созданы все условия для спорта и активного образа жизни. В благоустроенном дворе с детской и спортивными площадками можно заниматься уличной гимнастикой, разминаться на турниках или же просто спокойно прогуляться по дорожкам среди зелени и цветов. Островки отдыха с удобными скамейками в окружении зелени позволят расслабиться и снять стресс. А ландшафтный дизайн с яркими клумбами и цветниками сделают прогулки приятными и поднимут настроение.огороженная территориявходные группы на уровне землидвор без машинсистема видеонаблюдения по периметрусовременное благоустройство придомовой территориикачественные материалысистема Умный Дом дизайнерские холлысовременные бесшумные лифтыпросторные кладовыеквартиры с авторскими планировкамиподземная парковканаземная парковкаЖК Крылья жизнь с размахом

Читать полностью
    Позвонить Написать
    7 299 000 Р89 790 $ или 77 490
    Агент
    +7 (962) 468-24-45
    Начать чат с агентом
    Похожие предложения
    2-к кв. Удмуртия, Ижевск Игринская ул. (62.0 м) - Фото 1
    2-к кв. Удмуртия, Ижевск Игринская ул. (62.0 м) - Фото 2
    2-комнатная квартира, общая площадь 62м², кухня 5м²

    ЖК Крылья — это комплекс, который объединяет в себе современные технологичные инженерные решения и стильную архитектуру.Жилой комплекс находится в Первомайском районе города Ижевск с развитой инфраструктурой и активно развивающейся жилой застройкой.Преимущества...
    • 62 м²
    • 2-ком
    • 17/18 эт.
    7 228 000 Р
    Агент
    +7 (962) Показать номер
    Посмотреть контакты
    2-к кв. Удмуртия, Ижевск Игринская ул. (64.5 м) - Фото 1
    2-к кв. Удмуртия, Ижевск Игринская ул. (64.5 м) - Фото 2
    2-комнатная квартира, общая площадь 64м², кухня 5м²

    ЖК Крылья — это комплекс, который объединяет в себе современные технологичные инженерные решения и стильную архитектуру.Жилой комплекс находится в Первомайском районе города Ижевск с развитой инфраструктурой и активно развивающейся жилой застройкой.Преимущества...
    • 64 м²
    • 2-ком
    • 13/18 эт.
    7 299 000 Р
    Агент
    +7 (962) Показать номер
    Посмотреть контакты
    2-к кв. Удмуртия, Ижевск Игринская ул. (64.5 м) - Фото 1
    2-к кв. Удмуртия, Ижевск Игринская ул. (64.5 м) - Фото 2
    2-комнатная квартира, общая площадь 64м², кухня 5м²

    ЖК Крылья — это комплекс, который объединяет в себе современные технологичные инженерные решения и стильную архитектуру.Жилой комплекс находится в Первомайском районе города Ижевск с развитой инфраструктурой и активно развивающейся жилой застройкой.Преимущества...
    • 64 м²
    • 2-ком
    • 11/18 эт.
    7 299 000 Р
    Агент
    +7 (962) Показать номер
    Посмотреть контакты
    2-к кв. Удмуртия, Ижевск Южный жилрайон, Сенатор жилой комплекс (64.2 ... - Фото 1
    2-к кв. Удмуртия, Ижевск Южный жилрайон, Сенатор жилой комплекс (64.2 ... - Фото 2
    2-комнатная квартира, общая площадь 64м²

    Жилой комплекс комфорт-класса SENATOR.Представляем новый 17-этажный дом с тремя секциями Сенатор. Просторные коридоры создают ощущение комфорта. Витражное остекление фасадов и панорамное остекление балконов добавляют элегантности.На первом этаже расположена...
    • 64 м²
    • 2-ком
    • 14/17 эт.
    7 315 000 Р
    Агент
    +7 (901) Показать номер
    Посмотреть контакты
    2-к кв. Удмуртия, Ижевск Южный жилрайон, Сенатор жилой комплекс (64.2 ... - Фото 1
    2-к кв. Удмуртия, Ижевск Южный жилрайон, Сенатор жилой комплекс (64.2 ... - Фото 2
    2-комнатная квартира, общая площадь 64м²

    Жилой комплекс комфорт-класса SENATOR.Представляем новый 17-этажный дом с тремя секциями Сенатор. Просторные коридоры создают ощущение комфорта. Витражное остекление фасадов и панорамное остекление балконов добавляют элегантности.На первом этаже расположена...
    • 64 м²
    • 2-ком
    • 15/17 эт.
    7 315 000 Р
    Агент
    +7 (901) Показать номер
    Посмотреть контакты

    Не нашли подходящего объявления?

    Оставьте заявку, и наши риэлторы подберут квартиру в новостройке в районе Ижевска

    (0)