6 396 000 Р 80 620 $ или 68 820

Информация о квартире

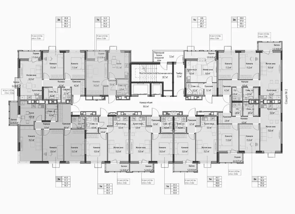
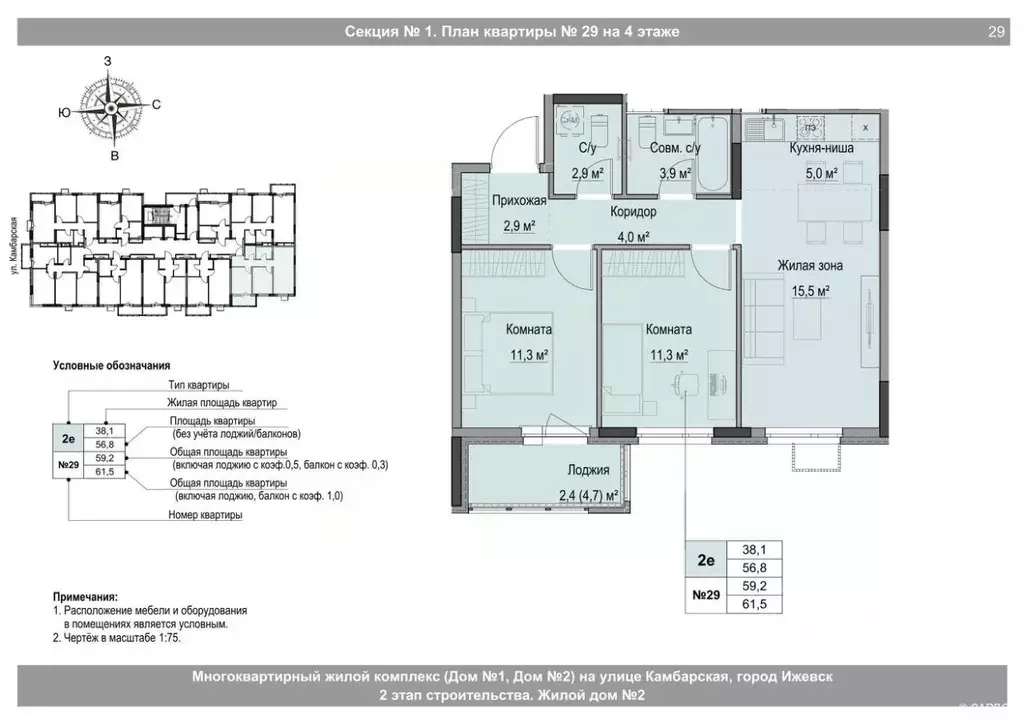
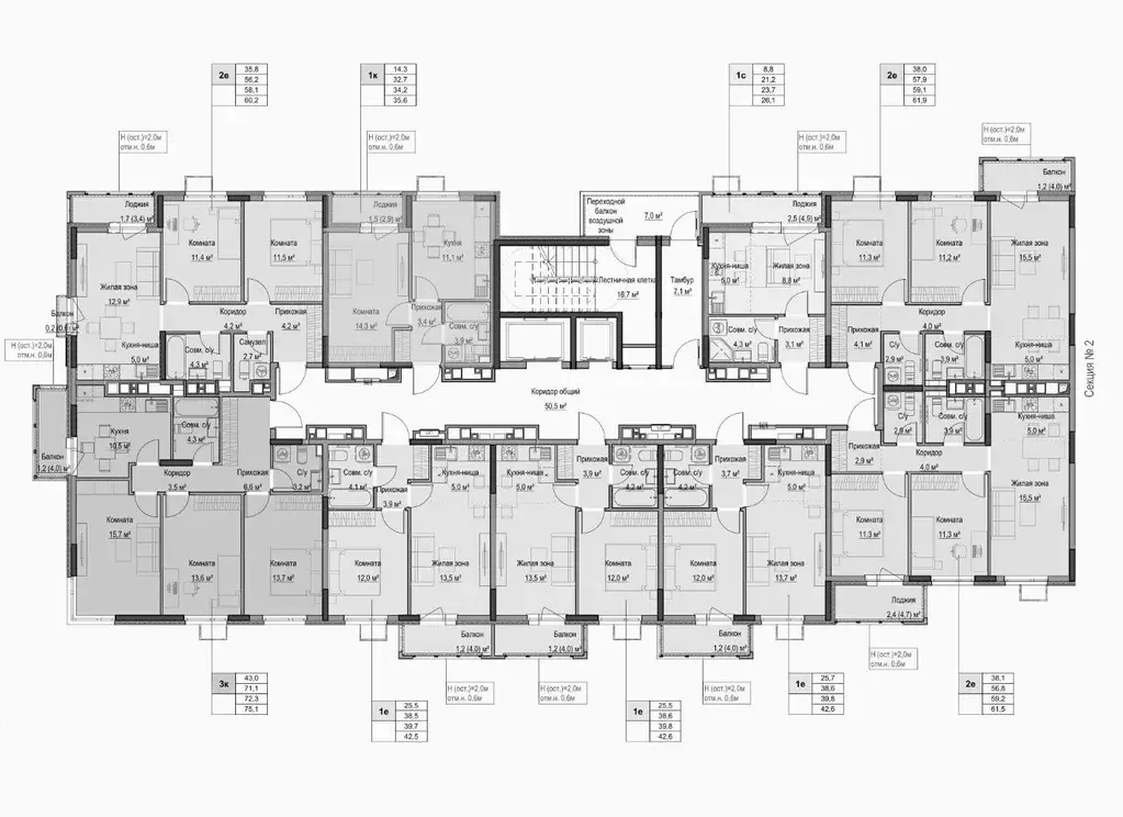
59 м2
Площадь
5 м2
Кухня
2
Комнаты
3
Этаж
18
Этажность
Развернуть
Агент
+7 (962) 468-24-45
Начать чат с агентом

2-к кв. Удмуртия, Ижевск Игринская ул. (59.1 м)

ЖК Крылья — это комплекс, который объединяет в себе современные технологичные инженерные решения и стильную архитектуру.Жилой комплекс находится в Первомайском районе города Ижевск с развитой инфраструктурой и активно развивающейся жилой застройкой.Преимущества локации:Современный развивающийся район.Рядом транспортная остановка.Вблизи расположены дет/сад 280 и 11, школа 74.Гипермаркет Лента и строительный магазин Лемана ПРО .Библиотека им. В.Г. Короленко.Многофункциональный двор: мы создали пространство, где каждый сможет найти занятие по душе. Уголки для отдыха и активности, уединения и общения, и все вместе они составляют приватную среду, которая становится органичным продолжением дома.Разнообразие игровых зон и тематических площадок для детей разного возраста: качели, карусели и интерактивные зоны.В жилом комплексе созданы все условия для спорта и активного образа жизни. В благоустроенном дворе с детской и спортивными площадками можно заниматься уличной гимнастикой, разминаться на турниках или же просто спокойно прогуляться по дорожкам среди зелени и цветов. Островки отдыха с удобными скамейками в окружении зелени позволят расслабиться и снять стресс. А ландшафтный дизайн с яркими клумбами и цветниками сделают прогулки приятными и поднимут настроение.огороженная территориявходные группы на уровне землидвор без машинсистема видеонаблюдения по периметрусовременное благоустройство придомовой территориикачественные материалысистема Умный Дом дизайнерские холлысовременные бесшумные лифтыпросторные кладовыеквартиры с авторскими планировкамиподземная парковканаземная парковкаЖК Крылья жизнь с размахом

Читать полностью
    Позвонить Написать
    6 396 000 Р80 620 $ или 68 820
    Агент
    +7 (962) 468-24-45
    Начать чат с агентом
    Похожие предложения в Ижевске
    2-к кв. Удмуртия, Ижевск Игринская ул., 12 (52.8 м) - Фото 1
    2-к кв. Удмуртия, Ижевск Игринская ул., 12 (52.8 м) - Фото 2
    2-комнатная квартира, общая площадь 52м², кухня 10м²

    ЖК Крылья — это комплекс, который объединяет в себе современные технологичные инженерные решения и стильную архитектуру.Жилой комплекс находится в Первомайском районе города Ижевск с развитой инфраструктурой и активно развивающейся жилой застройкой.Преимущества...
    • 52 м²
    • 2-ком
    • 12/18 эт.
    6 434 000 Р
    Агент
    +7 (962) Показать номер
    Посмотреть контакты
    2-к кв. Удмуртия, Ижевск Игринская ул. (54.5 м) - Фото 1
    2-к кв. Удмуртия, Ижевск Игринская ул. (54.5 м) - Фото 2
    2-комнатная квартира, общая площадь 54м², кухня 10м²

    ЖК Крылья — это комплекс, который объединяет в себе современные технологичные инженерные решения и стильную архитектуру.Жилой комплекс находится в Первомайском районе города Ижевск с развитой инфраструктурой и активно развивающейся жилой застройкой.Преимущества...
    • 54 м²
    • 2-ком
    • 8/18 эт.
    6 353 000 Р
    Агент
    +7 (962) Показать номер
    Посмотреть контакты
    2-к кв. Удмуртия, Ижевск Игринская ул. (59.2 м) - Фото 1
    2-к кв. Удмуртия, Ижевск Игринская ул. (59.2 м) - Фото 2
    2-комнатная квартира, общая площадь 59м², кухня 5м²

    ЖК Крылья — это комплекс, который объединяет в себе современные технологичные инженерные решения и стильную архитектуру.Жилой комплекс находится в Первомайском районе города Ижевск с развитой инфраструктурой и активно развивающейся жилой застройкой.Преимущества...
    • 59 м²
    • 2-ком
    • 4/18 эт.
    6 407 000 Р
    Агент
    +7 (962) Показать номер
    Посмотреть контакты
    2-к кв. Удмуртия, Ижевск Игринская ул. (59.2 м) - Фото 1
    2-к кв. Удмуртия, Ижевск Игринская ул. (59.2 м) - Фото 2
    2-комнатная квартира, общая площадь 59м², кухня 5м²

    ЖК Крылья — это комплекс, который объединяет в себе современные технологичные инженерные решения и стильную архитектуру.Жилой комплекс находится в Первомайском районе города Ижевск с развитой инфраструктурой и активно развивающейся жилой застройкой.Преимущества...
    • 59 м²
    • 2-ком
    • 2/18 эт.
    6 407 000 Р
    Агент
    +7 (962) Показать номер
    Посмотреть контакты
    2-к кв. Удмуртия, Ижевск Игринская ул. (59.1 м) - Фото 1
    2-к кв. Удмуртия, Ижевск Игринская ул. (59.1 м) - Фото 2
    2-комнатная квартира, общая площадь 59м², кухня 5м²

    ЖК Крылья — это комплекс, который объединяет в себе современные технологичные инженерные решения и стильную архитектуру.Жилой комплекс находится в Первомайском районе города Ижевск с развитой инфраструктурой и активно развивающейся жилой застройкой.Преимущества...
    • 59 м²
    • 2-ком
    • 7/18 эт.
    6 492 000 Р
    Агент
    +7 (962) Показать номер
    Посмотреть контакты

    Не нашли подходящего объявления?

    Оставьте заявку, и наши риэлторы подберут квартиру в новостройке в районе Ижевска

    (0)