7 520 000 Р 94 780 $ или 80 910

Информация о квартире

64 м2
Площадь
5 м2
Кухня
2
Комнаты
17
Этаж
18
Этажность
Развернуть
Агент
+7 (962) 468-24-45
Начать чат с агентом

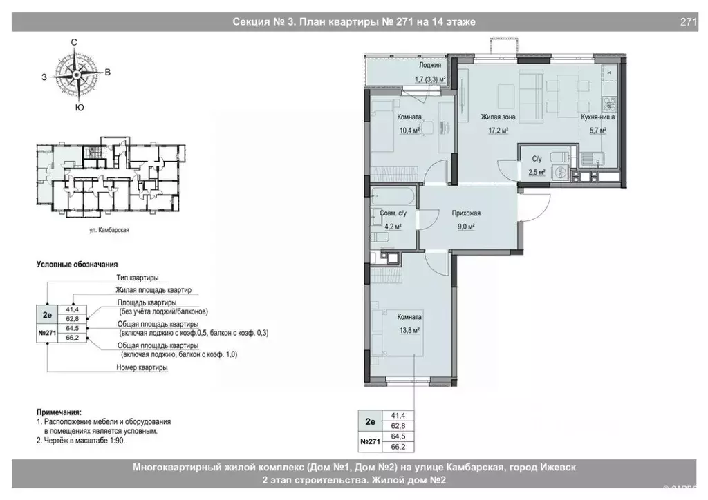
2-к кв. Удмуртия, Ижевск Игринская ул. (64.5 м)

ЖК Крылья — это комплекс, который объединяет в себе современные технологичные инженерные решения и стильную архитектуру.Жилой комплекс находится в Первомайском районе города Ижевск с развитой инфраструктурой и активно развивающейся жилой застройкой.Преимущества локации:Современный развивающийся район.Рядом транспортная остановка.Вблизи расположены дет/сад 280 и 11, школа 74.Гипермаркет Лента и строительный магазин Лемана ПРО .Библиотека им. В.Г. Короленко.Многофункциональный двор: мы создали пространство, где каждый сможет найти занятие по душе. Уголки для отдыха и активности, уединения и общения, и все вместе они составляют приватную среду, которая становится органичным продолжением дома.Разнообразие игровых зон и тематических площадок для детей разного возраста: качели, карусели и интерактивные зоны.В жилом комплексе созданы все условия для спорта и активного образа жизни. В благоустроенном дворе с детской и спортивными площадками можно заниматься уличной гимнастикой, разминаться на турниках или же просто спокойно прогуляться по дорожкам среди зелени и цветов. Островки отдыха с удобными скамейками в окружении зелени позволят расслабиться и снять стресс. А ландшафтный дизайн с яркими клумбами и цветниками сделают прогулки приятными и поднимут настроение.огороженная территориявходные группы на уровне землидвор без машинсистема видеонаблюдения по периметрусовременное благоустройство придомовой территориикачественные материалысистема Умный Дом дизайнерские холлысовременные бесшумные лифтыпросторные кладовыеквартиры с авторскими планировкамиподземная парковканаземная парковкаЖК Крылья жизнь с размахом

Читать полностью
    Позвонить Написать
    7 520 000 Р94 780 $ или 80 910
    Агент
    +7 (962) 468-24-45
    Начать чат с агентом
    Похожие предложения
    2-к кв. Удмуртия, Ижевск Игринская ул. (64.5 м) - Фото 1
    2-к кв. Удмуртия, Ижевск Игринская ул. (64.5 м) - Фото 2
    2-комнатная квартира, общая площадь 64м², кухня 5м²

    ЖК Крылья — это комплекс, который объединяет в себе современные технологичные инженерные решения и стильную архитектуру.Жилой комплекс находится в Первомайском районе города Ижевск с развитой инфраструктурой и активно развивающейся жилой застройкой.Преимущества...
    • 64 м²
    • 2-ком
    • 14/18 эт.
    7 409 000 Р
    Агент
    +7 (962) Показать номер
    Посмотреть контакты
    2-к кв. Удмуртия, Ижевск Игринская ул. (64.5 м) - Фото 1
    2-к кв. Удмуртия, Ижевск Игринская ул. (64.5 м) - Фото 2
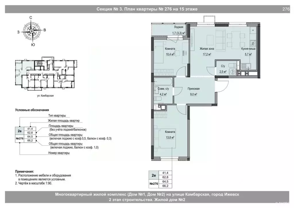
    2-комнатная квартира, общая площадь 64м², кухня 5м²

    ЖК Крылья — это комплекс, который объединяет в себе современные технологичные инженерные решения и стильную архитектуру.Жилой комплекс находится в Первомайском районе города Ижевск с развитой инфраструктурой и активно развивающейся жилой застройкой.Преимущества...
    • 64 м²
    • 2-ком
    • 15/18 эт.
    7 409 000 Р
    Агент
    +7 (962) Показать номер
    Посмотреть контакты
    2-к кв. Удмуртия, Ижевск Игринская ул. (64.5 м) - Фото 1
    2-к кв. Удмуртия, Ижевск Игринская ул. (64.5 м) - Фото 2
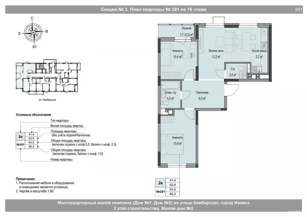
    2-комнатная квартира, общая площадь 64м², кухня 5м²

    ЖК Крылья — это комплекс, который объединяет в себе современные технологичные инженерные решения и стильную архитектуру.Жилой комплекс находится в Первомайском районе города Ижевск с развитой инфраструктурой и активно развивающейся жилой застройкой.Преимущества...
    • 64 м²
    • 2-ком
    • 16/18 эт.
    7 409 000 Р
    Агент
    +7 (962) Показать номер
    Посмотреть контакты
    2-к кв. Удмуртия, Ижевск Камбарская ул., 94к3 (69.26 м) - Фото 1
    2-к кв. Удмуртия, Ижевск Камбарская ул., 94к3 (69.26 м) - Фото 2
    2-комнатная квартира, общая площадь 69м²

    Продаётся 2-комнатная квартира в сданном доме (Камбарская, 94к3 (Дом 3)), срок сдачи: III-кв. 2024, общей площадью 69.26 кв.м., на 6 этаже. Квартира от застройщика КОМОССТРОЙ. Покупка защищена ФЗ 214 с использованием эскроу счетов. Умные кварталы А14...
    • 69 м²
    • 2-ком
    • 6/10 эт.
    7 442 800 Р
    Агент
    +7 (934) Показать номер
    Посмотреть контакты
    2-к кв. Удмуртия, Ижевск Ипподромный жилрайон, Седьмое Небо жилой ... - Фото 1
    2-комнатная квартира, общая площадь 57м²

    Продаётся 2-комнатная квартира в строящемся доме (Дом 4), срок сдачи: IV-кв. 2025, общей площадью 57.92 кв.м., на 21 этаже. Жилой комплекс Седьмое Небо для тех, кто хочет чуть большего. Чуть большее - это умные жилые планировки. Активные дворы и стильная...
    • 57 м²
    • 2-ком
    • 21/26 эт.
    7 449 000 Р
    Агент
    +7 (800) Показать номер
    Посмотреть контакты

    Не нашли подходящего объявления?

    Оставьте заявку, и наши риэлторы подберут квартиру в новостройке в районе Ижевска

    (0)