4 988 830 Р 61 680 $ или 53 420

Информация о квартире

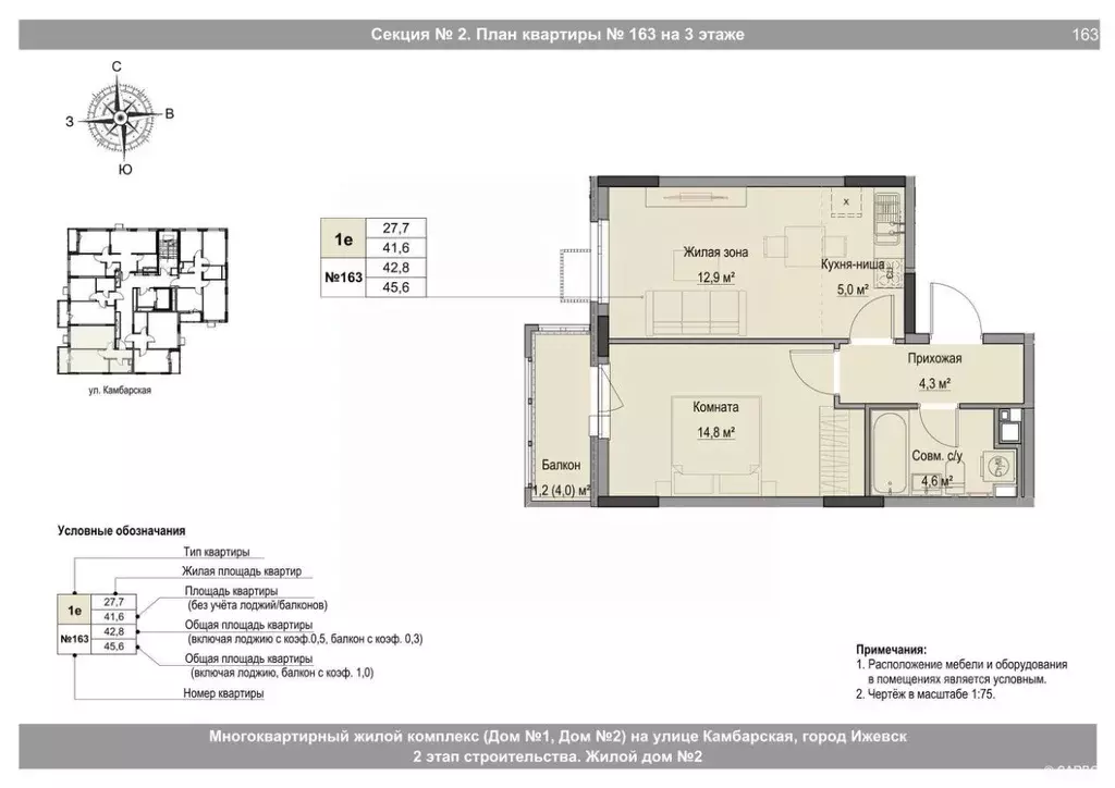
41 м2
Площадь
1
Комната
11
Этаж
17
Этажность
Развернуть
Агент
+7 (931) 522-53-01
Начать чат с агентом

1-к кв. Удмуртия, Ижевск Комсомольский проезд (41.21 м)

ЖК Министр — современный жилой комплекс от надежного застройщика Федерация , созданный для тех, кто ценит комфорт, динамику и уверенность в завтрашнем дне.Комплекс расположен в развивающемся районе Ю-2, где активно формируется новая городская среда: рядом всё необходимое для жизни, работы и отдыха.Транспортная доступность, зеленые зоны, новые дороги и инфраструктура делают этот район одним из самых перспективных направлений города.Архитектура и планировкиСовременные фасады, продуманные планировки, высокие потолки, панорамные окна и качественные материалы отделки создают атмосферу уюта и стиля.• Подземный паркинг с прямым доступом на лифте• Закрытая территория с видеонаблюдением• Детские и спортивные площадки во дворе• Просторные холлы с дизайнерской отделкой••••••••••••••••••Способы покупки:— 100 оплата собственными средствами.— Ипотека от ведущих банков.— Материнский капитал можно использовать как первоначальный взнос самостоятельно или в том числе с собственными средствами для покупки квартиры в строящемся доме.••••••••••••••••••Срок сдачи: 2028 г.••••••••••••••••••

Читать полностью
    Позвонить Написать
    4 988 830 Р61 680 $ или 53 420
    Агент
    +7 (931) 522-53-01
    Начать чат с агентом
    Похожие предложения
    Студия Удмуртия, Ижевск Игринская ул. (39.7 м) - Фото 1
    Студия Удмуртия, Ижевск Игринская ул. (39.7 м) - Фото 2
    студия, общая площадь 39м², кухня 5м²

    ЖК Крылья — это комплекс, который объединяет в себе современные технологичные инженерные решения и стильную архитектуру.Жилой комплекс находится в Первомайском районе города Ижевск с развитой инфраструктурой и активно развивающейся жилой застройкой.Преимущества...
    • 39 м²
    • студия-ком
    • 17/18 эт.
    4 923 000 Р
    Агент
    +7 (962) Показать номер
    Посмотреть контакты
    1-к кв. Удмуртия, Ижевск Южный жилрайон, Сенатор жилой комплекс (42.5 ... - Фото 1
    1-к кв. Удмуртия, Ижевск Южный жилрайон, Сенатор жилой комплекс (42.5 ... - Фото 2
    1-комнатная квартира, общая площадь 42м²

    Жилой комплекс комфорт-класса SENATOR.Представляем новый 17-этажный дом с тремя секциями Сенатор. Просторные коридоры создают ощущение комфорта. Витражное остекление фасадов и панорамное остекление балконов добавляют элегантности.На первом этаже расположена...
    • 42 м²
    • 1-ком
    • 14/17 эт.
    5 039 000 Р
    Агент
    +7 (901) Показать номер
    Посмотреть контакты
    1-к кв. Удмуртия, Ижевск Южный жилрайон, Сенатор жилой комплекс (47.3 ... - Фото 1
    1-к кв. Удмуртия, Ижевск Южный жилрайон, Сенатор жилой комплекс (47.3 ... - Фото 2
    1-комнатная квартира, общая площадь 47м², жилая 27м², кухня 6м²

    Жилой комплекс комфорт-класса SENATOR.Представляем новый 17-этажный дом с тремя секциями Сенатор. Просторные коридоры создают ощущение комфорта. Витражное остекление фасадов и панорамное остекление балконов добавляют элегантности.На первом этаже расположена...
    • 47 м²
    • 1-ком
    • 5/17 эт.
    5 054 000 Р
    Агент
    +7 (901) Показать номер
    Посмотреть контакты
    Студия Удмуртия, Ижевск Игринская ул. (42.8 м) - Фото 1
    Студия Удмуртия, Ижевск Игринская ул. (42.8 м) - Фото 2
    студия, общая площадь 42м², кухня 5м²

    ЖК Крылья — это комплекс, который объединяет в себе современные технологичные инженерные решения и стильную архитектуру.Жилой комплекс находится в Первомайском районе города Ижевск с развитой инфраструктурой и активно развивающейся жилой застройкой.Преимущества...
    • 42 м²
    • студия-ком
    • 5/18 эт.
    5 001 000 Р
    Агент
    +7 (962) Показать номер
    Посмотреть контакты
    Студия Удмуртия, Ижевск Игринская ул. (42.8 м) - Фото 1
    Студия Удмуртия, Ижевск Игринская ул. (42.8 м) - Фото 2
    студия, общая площадь 42м², кухня 5м²

    ЖК Крылья — это комплекс, который объединяет в себе современные технологичные инженерные решения и стильную архитектуру.Жилой комплекс находится в Первомайском районе города Ижевск с развитой инфраструктурой и активно развивающейся жилой застройкой.Преимущества...
    • 42 м²
    • студия-ком
    • 3/18 эт.
    4 927 000 Р
    Агент
    +7 (962) Показать номер
    Посмотреть контакты

    Не нашли подходящего объявления?

    Оставьте заявку, и наши риэлторы подберут квартиру в новостройке в районе Ижевска

    (0)