 
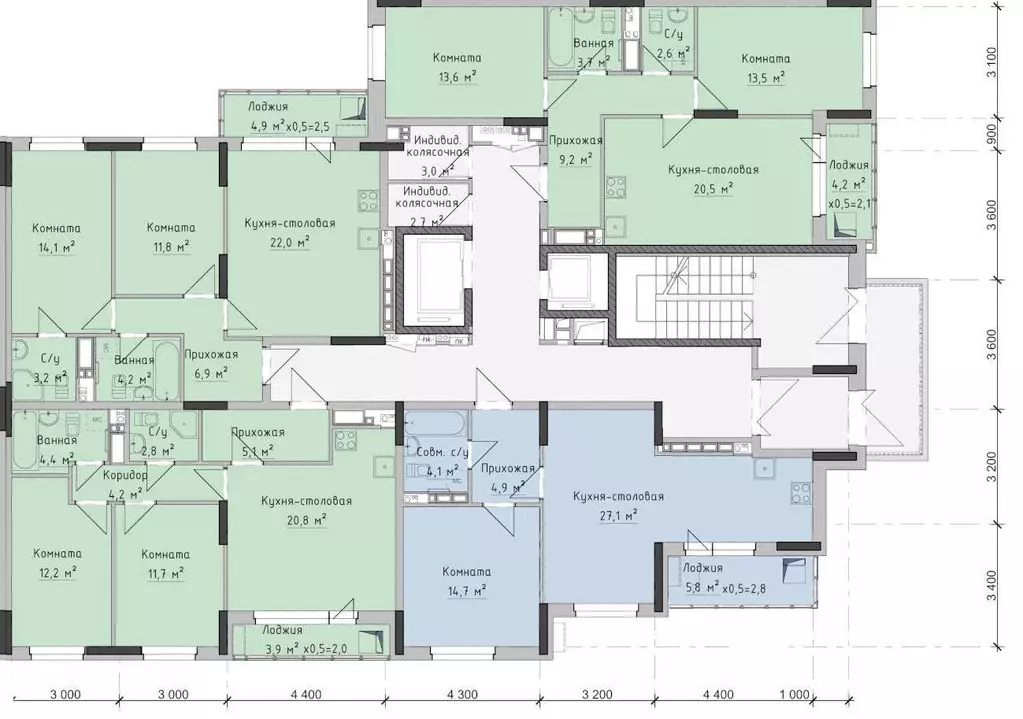
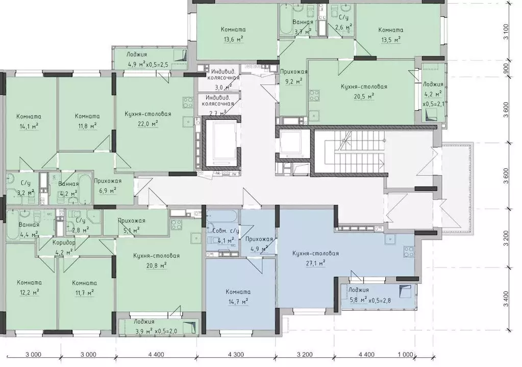
										Продается 1-комнатная квартира в 10 минутах от центра Ижевска, ул Холмогорова, площадью 40.00 кв. м. Квартира находится в жилом комплексе бизнес-класса МИРЫ от федерального застройщика Железно .Флагманский проект МИРЫ - место, где абсолютная безопасность, гармония тишины и привилегия жизни в шаге от делового центра объединяются в единый ансамбль. Здесь соединяются эстетика природы и энергия городской жизни - вы сами выбираете свой ритм каждый день.Каждая из трех башен обладает собственным характером, выраженным через благородную палитру металлов - золото, серебро, бронзу. Динамичный переменный силуэт - от 13 до 16 этажей - особенно красиво выделяется с наступлением темноты: архитектурная подсветка превращает дома в настоящие арт-объекты.На территории жилого комплекса будет 3 двора, каждый из которых воплощает уникальную природную стихию. Элементы из бронзы символизируют устойчивость Земли, серебряные детали - легкость Воды, а яркое золото - энергичный Огонь. Каждое из этих уникальных пространств станет приватным уголком для активного и тихого отдыха резидентов, семейных прогулок и игр детей. Преимущества: - Закрытая территория - Умный дом - Wi-Fi на всей территории, Face ID, умные лифты - Повышенная шумоизоляция квартир; - Индивидуальные гаражные боксы; - Собственные котельные - гарантия комфортного микроклимата; - Вся необходимая инфраструктура в ближайшей доступности: школы, детские сады, магазины, торговые центры и многое другое.Успейте приобрести квартиру на выгодных условиях Чтобы узнать подробности, обращайтесь за консультацией по телефону.
 
								 
											
                                                                         
											
                                                                         
											
                                                                         
											
                                                                         
											
                                                                        Оставьте заявку, и наши риэлторы подберут квартиру в новостройке в районе Ижевска
