Реализация объекта недвижимости приостановлена

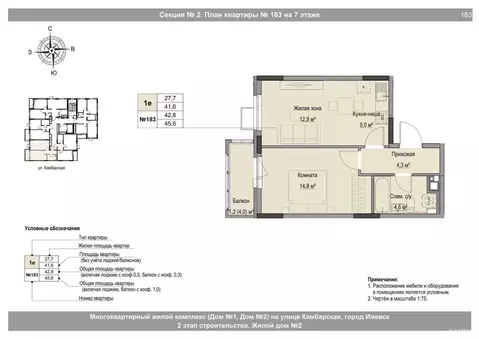
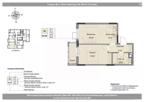
Информация о квартире

39.0 м2
Площадь
1
Комната
6
Этаж
17
Этажность
Развернуть

    Реализация объекта недвижимости приостановлена

    Не нашли подходящего объявления?

    Оставьте заявку, и наши риэлторы подберут квартиру в новостройке в районе Ижевска

    (0)