6 304 200 Р 77 610 $ или 67 180

Информация о квартире

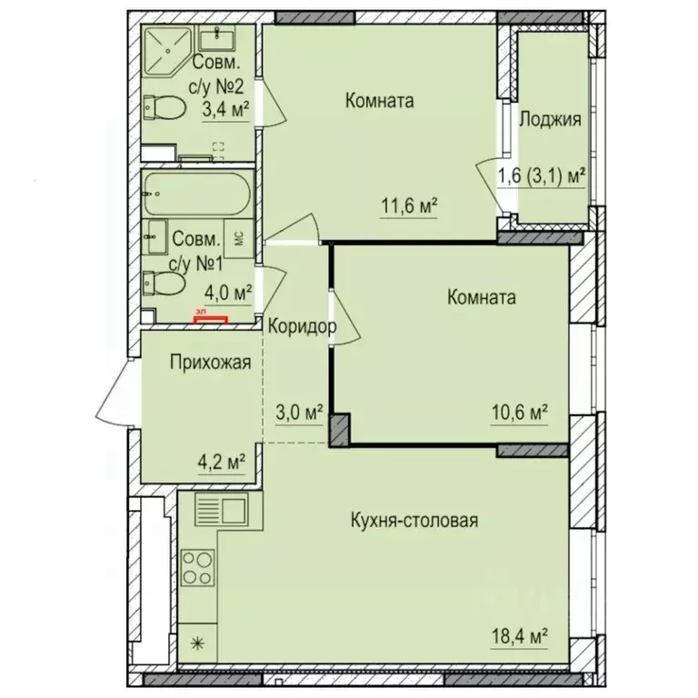
53 м2
Площадь
2
Комнаты
4
Этаж
17
Этажность
Развернуть
Агент
+7 (992) 253-16-09
Начать чат с агентом

2-к кв. Удмуртия, Ижевск Буммаш жилрайон, Покровский жилой комплекс ...

Продаётся 2-комнатная квартира в строящемся доме (Дом 7), срок сдачи: III-кв. 2028, общей площадью 53.2 кв.м., на 4 этаже. Квартира от застройщика КОМОССТРОЙ. Покупка защищена ФЗ 214 с использованием эскроу счетов. ЖК Покровский на улице 10 лет Октября - по-настоящему семейный жилой комплекс В шаговой доступности находятся:- Школы 72 и 93;- Детские сады 52, 54, 63, 101 и 238;- Торговые центры Эльгрин , Омега и Столица ;- Фитнес клубы Платформа и Омега-фитнес .В проекте жилого комплекса мы предусмотрели большое количество детских и спортивных площадок, зеленую аллею для прогулок с элементами ландшафтного дизайна, широкие дворовые проезды, новый, расширенный пакет системы Умный дом .Квартира:Мы выполняем все капитальные и грязные работы до передачи квартиры собственнику. Стены подготавливаем под оклейку обоями. На полу выполняем полусухую стяжку со звукоизолирующим слоем.Предусмотрена периметральная поквартирная разводка труб отопления в конструкции пола. Устанавливаем стильные стальные панельные радиаторы с нижней подводкой.Устанавливаем клапаны приточной вентиляции, обеспечивающие оптимальный режим притока свежего воздуха в помещение. Приточный клапан оснащен системами шумоизоляции и фильтрации воздуха. Устанавливаем надежные металлические входные двери с тепло- и звукоизоляцией. Выполняем прокладку электросетей, устанавливаем электросчетчики, одну розетку и один выключатель в прихожей.По дополнительному соглашению мы можем выполнить в вашей квартире чистовую отделку по нашему типовому проекту. Все вопросы можно уточнить в отделе продаж по телефону, указанному в объявлении. Звоните

Читать полностью
    Позвонить Написать
    6 304 200 Р77 610 $ или 67 180
    Агент
    +7 (992) 253-16-09
    Начать чат с агентом
    Похожие предложения в Ижевске
    2-к кв. Удмуртия, Ижевск Буммаш жилрайон, Покровский жилой комплекс ... - Фото 1
    2-к кв. Удмуртия, Ижевск Буммаш жилрайон, Покровский жилой комплекс ... - Фото 2
    2-комнатная квартира, общая площадь 55м²

    Продаётся 2-комнатная квартира в строящемся доме (Дом 7), срок сдачи: III-кв. 2028, общей площадью 55.9 кв.м., на 2 этаже. Квартира от застройщика КОМОССТРОЙ. Покупка защищена ФЗ 214 с использованием эскроу счетов. ЖК Покровский на улице 10 лет Октября...
    • 55 м²
    • 2-ком
    • 2/17 эт.
    6 372 600 Р
    Агент
    +7 (992) Показать номер
    Посмотреть контакты
    2-к кв. Удмуртия, Ижевск Буммаш жилрайон, Покровский жилой комплекс ... - Фото 1
    2-к кв. Удмуртия, Ижевск Буммаш жилрайон, Покровский жилой комплекс ... - Фото 2
    2-комнатная квартира, общая площадь 53м²

    Продаётся 2-комнатная квартира в строящемся доме (Дом 7), срок сдачи: III-кв. 2028, общей площадью 53.2 кв.м., на 8 этаже. Квартира от застройщика КОМОССТРОЙ. Покупка защищена ФЗ 214 с использованием эскроу счетов. ЖК Покровский на улице 10 лет Октября...
    • 53 м²
    • 2-ком
    • 8/17 эт.
    6 357 400 Р
    Агент
    +7 (992) Показать номер
    Посмотреть контакты
    2-к кв. Удмуртия, Ижевск Буммаш жилрайон, Покровский жилой комплекс ... - Фото 1
    2-к кв. Удмуртия, Ижевск Буммаш жилрайон, Покровский жилой комплекс ... - Фото 2
    2-комнатная квартира, общая площадь 53м²

    Продаётся 2-комнатная квартира в строящемся доме (Дом 7), срок сдачи: III-кв. 2028, общей площадью 53.2 кв.м., на 7 этаже. Квартира от застройщика КОМОССТРОЙ. Покупка защищена ФЗ 214 с использованием эскроу счетов. ЖК Покровский на улице 10 лет Октября...
    • 53 м²
    • 2-ком
    • 7/17 эт.
    6 357 400 Р
    Агент
    +7 (992) Показать номер
    Посмотреть контакты
    2-к кв. Удмуртия, Ижевск Буммаш жилрайон, Покровский жилой комплекс ... - Фото 1
    2-к кв. Удмуртия, Ижевск Буммаш жилрайон, Покровский жилой комплекс ... - Фото 2
    2-комнатная квартира, общая площадь 56м²

    Продаётся 2-комнатная квартира в строящемся доме (Дом 7), срок сдачи: III-кв. 2028, общей площадью 56.9 кв.м., на 1 этаже. Квартира от застройщика КОМОССТРОЙ. Покупка защищена ФЗ 214 с использованием эскроу счетов. ЖК Покровский на улице 10 лет Октября...
    • 56 м²
    • 2-ком
    • 1/17 эт.
    6 344 350 Р
    Агент
    +7 (992) Показать номер
    Посмотреть контакты
    2-к кв. Удмуртия, Ижевск Буммаш жилрайон, Покровский жилой комплекс ... - Фото 1
    2-к кв. Удмуртия, Ижевск Буммаш жилрайон, Покровский жилой комплекс ... - Фото 2
    2-комнатная квартира, общая площадь 53м²

    Продаётся 2-комнатная квартира в строящемся доме (Дом 7), срок сдачи: III-кв. 2028, общей площадью 53.2 кв.м., на 3 этаже. Квартира от застройщика КОМОССТРОЙ. Покупка защищена ФЗ 214 с использованием эскроу счетов. ЖК Покровский на улице 10 лет Октября...
    • 53 м²
    • 2-ком
    • 3/17 эт.
    6 277 600 Р
    Агент
    +7 (992) Показать номер
    Посмотреть контакты

    Не нашли подходящего объявления?

    Оставьте заявку, и наши риэлторы подберут квартиру в новостройке в районе Ижевска

    (0)