4 500 000 Р 55 400 $ или 47 960

Информация о квартире

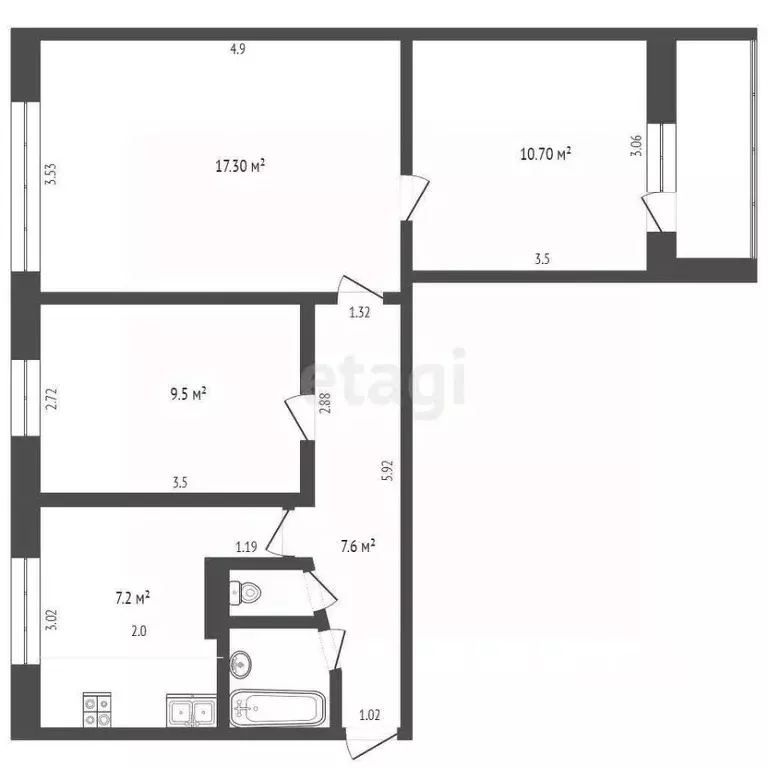
69 м2
Площадь
7 м2
Кухня
4
Комнаты
9
Этаж
9
Этажность

Дополнительная информация

Тип дома
панельный
Развернуть
Агент
+7 (982) 117-29-41
Начать чат с агентом

4-к кв. Удмуртия, Ижевск ул. Михаила Петрова, 7 (69.1 м)

продается очень большая 4-х комнатная квартира.В данной квартире 4 большие комнаты, 2 большие лоджии, просторная кухня, а так же очень вместительная гардеробная, которую можно использовать как кладовку.В квартире требуется сделать ремонт, но сама квартира находиться на высоком этаже и у нее потрясающий вид, находиться около ТЦ Петровкий.Вся инфраструктура расположена недалеко от дома, садики, школы, магазины, трамвайные, автобусные остановки.Двор большой и чистый, есть детские площадки. Код пользователя: 147337Номер в базе: 4748453

Читать полностью

    Для того, чтобы купить четырехкомнатную квартиру по адресу: Ижевск, Устиновский, ул. Михаила Петрова, 7, позвоните по телефону +7 (982) 117-29-41. Торопитесь! Объявление №30090324005 о продаже четырехкомнатной квартиры опубликовано 01 ноября 2025.

    Позвонить Написать
    4 500 000 Р55 400 $ или 47 960
    Агент
    +7 (982) 117-29-41
    Начать чат с агентом
    Похожие предложения
    3-к кв. Удмуртия, Ижевск ул. Имени Барышникова, 69 (54.0 м) - Фото 1
    3-к кв. Удмуртия, Ижевск ул. Имени Барышникова, 69 (54.0 м) - Фото 2
    3-комнатная квартира, общая площадь 54м², кухня 7м²

    Квартира которая оптимально подходит для комфортного проживания семьи. Грамотное зонирование, хорошая освещенность и практичная отделка, квартира готова к заселению. Жилье находится в развитом районе с полным набором повседневной инфраструктуры: в шаговой...
    • 54 м²
    • 3-ком
    • 5/9 эт.
    • панельный
    4 600 000 Р
    Агент
    +7 (912) Показать номер
    Посмотреть контакты
    4-к кв. Удмуртия, Ижевск Молодежная ул., 53 (68.6 м) - Фото 1
    4-к кв. Удмуртия, Ижевск Молодежная ул., 53 (68.6 м) - Фото 2
    4-комнатная квартира, общая площадь 68м², кухня 7м²

    В продаже просторная и светлая 4--х комнатная квартира,асположенная в тихом районе с развитой инфраструктурой, где созданы все условия для комфортной жизни. Ключевое преимущество — отличная транспортная доступность: всего 5 минут пешком до остановок общественного...
    • 68 м²
    • 4-ком
    • 1/9 эт.
    • панельный
    4 550 000 Р
    Агент
    +7 (912) Показать номер
    Посмотреть контакты
    1-к кв. Удмуртия, Ижевск ул. Архитектора П.П. Берша, 3к3 (39.9 м) - Фото 1
    1-к кв. Удмуртия, Ижевск ул. Архитектора П.П. Берша, 3к3 (39.9 м) - Фото 2
    1-комнатная квартира, общая площадь 39м², кухня 11м²

    Квартира площадью 39,2 м с жилой зоной 17,2 м и большой кухней 11,2 м. Окна выходят на восток, обеспечивая утреннее солнце и много света. В квартире выполнен косметический ремонтНа кухне установлен тёплый пол, остаётся кухонная гарнитура. Есть просторная...
    • 39 м²
    • 1-ком
    • 2/9 эт.
    • монолит
    4 420 000 Р
    Агент
    +7 (912) Показать номер
    Посмотреть контакты
    1-к кв. Удмуртия, Ижевск Молодежная ул., 107В (42.0 м) - Фото 1
    1-к кв. Удмуртия, Ижевск Молодежная ул., 107В (42.0 м) - Фото 2
    1-комнатная квартира, общая площадь 42м², жилая 20м², кухня 14м²

    1 ком. квартира, с большой кухней гостинной, с качественной предчистовой отделкой это уникальная возможность сделать ремонт на свой вкус,воплолить в реальность задуманное.Этa квартиpa станeт отличным вaриaнтом для тeх, ктo ищeт комфopтноe жильe в coвременнoм...
    • 42 м²
    • 1-ком
    • 10/18 эт.
    4 490 000 Р
    Агент
    +7 (912) Показать номер
    Посмотреть контакты
    2-к кв. Удмуртия, Ижевск Автозаводская ул., 21А (44.2 м) - Фото 1
    2-к кв. Удмуртия, Ижевск Автозаводская ул., 21А (44.2 м) - Фото 2
    2-комнатная квартира, общая площадь 44м², жилая 26м², кухня 8м²

    Продается теплая двухкомнатная квартира с изолированными комнатами и просторной кухней Остается красивый кухонный гарнитур с электрической плитой, вытяжкой, ящики с доводчиками. Окна пластиковые, на полу ламинат. Развитая инфраструктур: рядом много продуктовых...
    • 44 м²
    • 2-ком
    • 11/14 эт.
    • кирпичный
    4 400 000 Р
    Агент
    +7 (982) Показать номер
    Посмотреть контакты

    Не нашли подходящего объявления?

    Оставьте заявку, и наши риэлторы подберут квартиру в районе Ижевска

    (0)