8 500 000 Р 107 500 $ или 92 310

Информация об помещении

1
Этаж

Состояние и оснащение

Количество этажей
5
Развернуть
Агент
+7 (982) 992-11-59
Начать чат с агентом

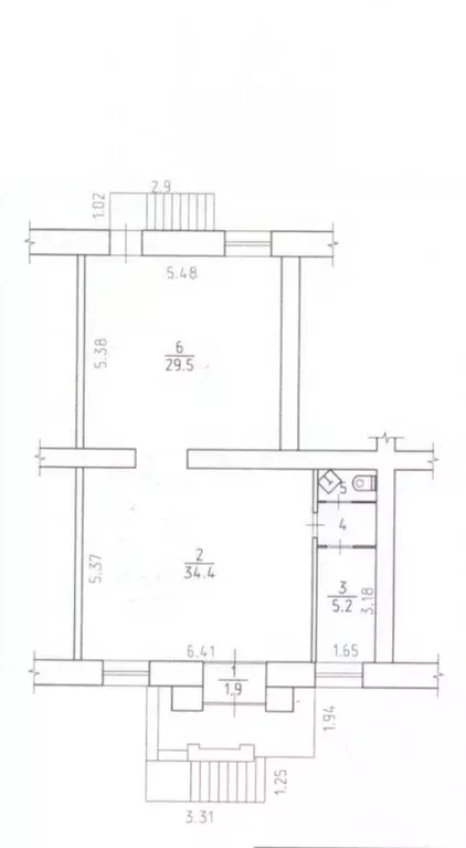
Торговая площадь в Удмуртия, Ижевск ул. Воровского, 143 (74 м)

Характеристики:- 1 линия- Отдельная входная группа- Общая парковка- Есть возможность разместить вывеску- Погрузка/разгрузка: Запасной вход, Главный вход- Доступ 24/7- ХВС/ГВС- Свой санузел- Центральное отопление- Приточная вентиляция- Есть кондиционер- Максимальная мощность 12 кВт- Хороший ремонт- Стрит ритейл- Имеется запасной выход- Без лифта- Высота потолков 2.6 м- С окнами- Возможность перепланировки- Коммунальные услуги оплачиваются отдельноДополнительная информация:Продается помещение свободного назначения на 1 линии ул. Воровского. Отличный пешеходный и трафик. 2 выхода, зона погрузки - разгрузки, 2 отдельных зала, комната для персонала, кондиционеры, мощность электричества можно увеличить до 40.АРР0По всем вопросам можете обращаться к представителю собственника: Наталья

Читать полностью
    Позвонить Написать
    8 500 000 Р107 500 $ или 92 310
    Агент
    +7 (982) 992-11-59
    Начать чат с агентом
    Похожие предложения
    Торговая площадь в Удмуртия, Ижевск ул. Цветочная, 7 (68 м) - Фото 1
    Торговая площадь в Удмуртия, Ижевск ул. Цветочная, 7 (68 м) - Фото 2
    В продаже коммерция 68кв.м, Находится в проходном месте с большим трафиком. В помещение установлен кондиционер, смонтирована система охраны, подведены все необходимые коммуникации. Сохраняется мебель и оборудование, ранее использовавшееся для продуктового...
    • 1/18 эт.
    8 500 000 Р
    Агент
    +7 (912) Показать номер
    Посмотреть контакты
    Торговая площадь в Удмуртия, Сарапул Советская ул., 40 (523 м) - Фото 1
    Торговая площадь в Удмуртия, Сарапул Советская ул., 40 (523 м) - Фото 2
    Продается коммерческое помещение на первой линии в центральной части города. Здание отдельно стоящее, с автономными системами отопления (газ) и канализации, с центральным водопроводом. Перед зданием имеется удобная парковка и зона разгрузки/выгрузки....
    • 2/2 эт.
    8 500 000 Р
    Агент
    +7 (912) Показать номер
    Посмотреть контакты
    Торговая площадь в Ставропольский край, Предгорный муниципальный ... - Фото 1
    Торговая площадь в Ставропольский край, Предгорный муниципальный ... - Фото 2
    срочное предложение Продаётся отдельностоящее здание в центре станицы Бекешевской.Заключены договора по воде и свету.Земельный участок 13,5 соток в собственности.Расположено на первой линии около центральной площади ДК и прогулочного парка.Наличие большой...
    • 1/1 эт.
    8 500 000 Р
    Агент
    +7 (918) Показать номер
    Посмотреть контакты
    Торговая площадь в Ульяновская область, Ульяновск ул. Маяковского, 14 ... - Фото 1
    Торговая площадь в Ульяновская область, Ульяновск ул. Маяковского, 14 ... - Фото 2
    ОписаниеПомещение Торговое Склад 124 мБЕЗ КОМИССИИ ДЛЯ ПОКУПАТЕЛЯ Номер объекта в базе 18038Площадь: 124 кв.мЭтаж: 1Этажность: 5Все коммуникации проведеныСостояние: в эксплуатацииДоступ в помещение: 24-7Электроснабжение: 25 кВтВысота потолков: 3 мКол-во...
    • 1/5 эт.
    8 400 000 Р
    Агент
    +7 (917) Показать номер
    Посмотреть контакты
    Торговая площадь в Ямало-Ненецкий АО, Новый Уренгой Юбилейная ул., 5 ... - Фото 1
    Торговая площадь в Ямало-Ненецкий АО, Новый Уренгой Юбилейная ул., 5 ... - Фото 2
    Продается уникальное коммерческое помещение свободного назначения площадью 94,1 кв.м., расположенное в самом сердце Южной части города, в престижном торговом центре Ямал . Это идеальное место для вашего бизнеса Помещение имеет современную конструкцию...
    • -1/6 эт.
    8 500 000 Р
    Агент
    +7 (919) Показать номер
    Посмотреть контакты

    Не нашли подходящего объявления?

    Оставьте заявку, и наши риэлторы подберут торговое помещение в районе Ижевска

    (0)