198 400 Р 2 430 $ или 2 090

Информация об помещении

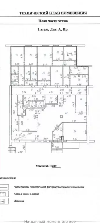
1
Этаж

Состояние и оснащение

Количество этажей
9
Развернуть
Агент
+7 (982) 992-11-59
Начать чат с агентом

Помещение свободного назначения в Удмуртия, Ижевск Автозаводская ул., ...

От собственника Без комиссии Характеристики:- 1 линия- Отдельная входная группа- Общая парковка- Доступ 24/7- ХВС/ГВС- Свой санузел- Центральное отопление- Чистовой ремонт- Кабинетная планировка- Жилой дом- С окнами- Инфраструктура: Кафе/столовые, Магазины, Банки- Коммунальные услуги оплачиваются отдельноДополнительная информация:Частями не сдается Только целиком Пристрой к дому. Прежний арендатор Центр протезирования , новейший ремонт, все чистое, красивое. Планировка большой зал и кабинеты.По всем вопросам можете обращаться к представителю собственника: РезедаДобавьте это объявление в избранное - чтобы не потерять.

Читать полностью
    Позвонить Написать
    198 400 Р2 430 $ или 2 090
    Агент
    +7 (982) 992-11-59
    Начать чат с агентом
    Похожие предложения
    Помещение свободного назначения в Удмуртия, Ижевск Автозаводская ул., ... - Фото 1
    Помещение свободного назначения в Удмуртия, Ижевск Автозаводская ул., ... - Фото 2
    Предлагаем в аренду помещение на втором этаже над популярным кафе Пальма . Это отличное решение для бизнеса в сфере развлечений.Наше предложение особенно привлекательно благодаря удобному расположению с отличным доступом и просторной парковкой для гостей...
    • 2/2 эт.
    200 000 Р
    Агент
    +7 (982) Показать номер
    Посмотреть контакты
    Помещение свободного назначения в Удмуртия, Ижевск ул. Ворошилова, 29 ... - Фото 1
    Помещение свободного назначения в Удмуртия, Ижевск ул. Ворошилова, 29 ... - Фото 2
    От собственника Без комиссии Характеристики:- 1 линия- Общая входная группа- Общая парковка- Есть возможность разместить вывеску- Погрузка/разгрузка: Запасной вход- Доступ 24/7- ХВС/ГВС- Свой санузел- Центральное отопление- Естественная вентиляция- Максимальная...
    • 1/9 эт.
    200 400 Р
    Агент
    +7 (982) Показать номер
    Посмотреть контакты
    Помещение свободного назначения в Удмуртия, Ижевск Красная ул., 140 ... - Фото 1
    Помещение свободного назначения в Удмуртия, Ижевск Красная ул., 140 ... - Фото 2
    Жилой комплекс Первый Дом на Красной — это идеальное место для вашего бизнеса. Он расположен на первой линии одной из главных магистралей города.Высокие потолки (4,5 метра) подчеркнут ваш статус и предоставят свободу для творчества и развития.Интенсивное...
    • 1/9 эт.
    199 000 Р
    Агент
    +7 (982) Показать номер
    Посмотреть контакты
    Помещение свободного назначения в Удмуртия, Ижевск ул. Маяковского, 48 ... - Фото 1
    Помещение свободного назначения в Удмуртия, Ижевск ул. Маяковского, 48 ... - Фото 2
    От собственника Без комиссии Характеристики:- 1 линия- Общая входная группа- Общая парковка- Есть возможность разместить вывеску- Погрузка/разгрузка: Главный вход, Запасной вход- Доступ 24/7- ХВС/ГВС- Свой санузел- Центральное отопление- Естественная...
    • 1/5 эт.
    210 000 Р
    Агент
    +7 (982) Показать номер
    Посмотреть контакты
    Помещение свободного назначения в Удмуртия, Ижевск Пушкинская ул., 268 ... - Фото 1
    Помещение свободного назначения в Удмуртия, Ижевск Пушкинская ул., 268 ... - Фото 2
    От собственника Без комиссии Характеристики:- 1 линия- Общая входная группа- Своя парковка- Есть возможность разместить вывеску- Доступ 24/7- ХВС/Бойлер- Свой санузел- Центральное отопление- Приточно-вытяжная вентиляция- Есть кондиционер- Максимальная...
    • 1/4 эт.
    190 800 Р
    Агент
    +7 (982) Показать номер
    Посмотреть контакты

    Не нашли подходящего объявления?

    Оставьте заявку, и наши риэлторы подберут псн в районе Ижевска

    (0)