Реализация объекта недвижимости приостановлена

Информация о квартире

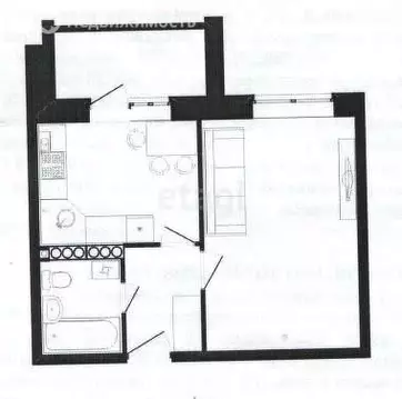
58.0 м2
Площадь
6.0 м2
Кухня
3
Комнаты
2
Этаж
5
Этажность

Дополнительная информация

Тип дома
кирпичный
Развернуть

3-к кв. Удмуртия, Можга Можгинский район, Наговицынский мкр, 35 (58.3 ...

Продается просторная 3-комнатная квартира в Наговицынском микрорайоне на втором этаже с хорошим ремонтом, есть балкон. Комнаты большие светлые, не смежные., высокие потолки - 2,5 м. Площадь кухни 6,2 кв.м. Чистый подъезд с хорошим ремонтом. В районе развитая инфраструктура: детские сады, гимназия 8, магазины, пункты выдачи, почта, мед.клиники, остановки общественного транспорта. Показ по предварительной записи, помощь в одобрении ипотеки. Код пользователя: 191665Номер в базе:

Читать полностью

    Реализация объекта недвижимости приостановлена

    Не нашли подходящего объявления?

    Оставьте заявку, и наши риэлторы подберут квартиру в районе Можги

    (0)