16 500 000 Р 210 900 $ или 181 700

Информация об помещении

1
Этаж

Состояние и оснащение

Количество этажей
2
Развернуть
Агент
+7 (982) 821-00-20
Начать чат с агентом

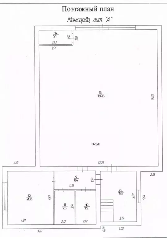
Помещение свободного назначения в Удмуртия, Можга Можгинский район, ...

Продается отдельно стоящее здание , есть арендатор с действующим бизнесом, цокольный этаж с отдельным входом свободен.Возможность организовать собственное дело Удобные подъездные пути, свободная планировка, низкие коммунальные платежи, так как индивидуальное отопление.Отдельные входные группы, круглосуточный доступ. Рассмотрим варианты под долгосрочную аренду.

Читать полностью
    Позвонить Написать
    16 500 000 Р210 900 $ или 181 700
    Агент
    +7 (982) 821-00-20
    Начать чат с агентом
    Похожие предложения
    Помещение свободного назначения в Удмуртия, Можга Можгинский район, ... - Фото 1
    Помещение свободного назначения в Удмуртия, Можга Можгинский район, ... - Фото 2
    Продаются помещения общей площадью 1060,9 кв. м на 1, 2 и цокольном этажах 2-этажного здания.В помещениях есть постоянные арендаторы. Коммуникации центральные: электроснабжение, водоснабжение, канализация, отопление.Год постройки здания 1965, пристроя...
    • 1/2 эт.
    17 034 000 Р
    Агент
    +7 (982) Показать номер
    Посмотреть контакты
    Помещение свободного назначения в Удмуртия, Ижевск ул. Коммунаров, 249 ... - Фото 1
    Помещение свободного назначения в Удмуртия, Ижевск ул. Коммунаров, 249 ... - Фото 2
    В самом центре города, удобное расположение во всех отношениях, хороший пешеходный трафик, абсолютно все в шаговой доступности, в двух шагах УдГУ, медакадемия, центральная площадь, парк вечного огня, президентский дворец, торговые центры, , рестораны,...
    • 1/6 эт.
    16 000 000 Р
    Агент
    +7 (982) Показать номер
    Посмотреть контакты
    Помещение свободного назначения в Удмуртия, Ижевск Пушкинская ул., ... - Фото 1
    Помещение свободного назначения в Удмуртия, Ижевск Пушкинская ул., ... - Фото 2
    Коммерческая недвижимость в Ижевске на первой линии ул. Пушкинская 275 Помещение под офис 46.61 м в Parus Corten — это готовый трафик и правильное позиционирование для вашего бренда. Расположение в центре деловой жизни:- Главная бизнес-артерия города-...
    • 3/9 эт.
    16 262 785 Р
    Агент
    +7 (919) Показать номер
    Посмотреть контакты
    Помещение свободного назначения в Удмуртия, Сарапул ул. Гоголя, 76 ... - Фото 1
    Помещение свободного назначения в Удмуртия, Сарапул ул. Гоголя, 76 ... - Фото 2
    Характеристики:- 1 линия- Отдельная входная группа- Общая парковка- Есть возможность разместить вывеску- Погрузка/разгрузка: Главный вход, Запасной вход, Отдельное окно- Доступ 24/7- ХВС/ГВС- Свой санузел- Автономное отопление- Приточно-вытяжная вентиляция-...
    • 1/2 эт.
    16 000 000 Р
    Агент
    +7 (982) Показать номер
    Посмотреть контакты
    Помещение свободного назначения в Удмуртия, Ижевск Пушкинская ул., 116 ... - Фото 1
    Помещение свободного назначения в Удмуртия, Ижевск Пушкинская ул., 116 ... - Фото 2
    Характеристики:- 1 линия- Отдельная входная группа- Общая парковка- Доступ 24/7- ХВС/ГВС- Свой санузел- Центральное отопление- Хороший ремонт- Кабинетная планировка- Жилой дом- Высота потолков 3 м- С окнами- Инфраструктура: Кафе/столовые, Магазины, БанкиДополнительная...
    • 1/10 эт.
    16 600 000 Р
    Агент
    +7 (982) Показать номер
    Посмотреть контакты

    Не нашли подходящего объявления?

    Оставьте заявку, и наши риэлторы подберут псн в районе Можги

    (0)