2 500 000 Р 30 970 $ или 26 450

Информация о квартире

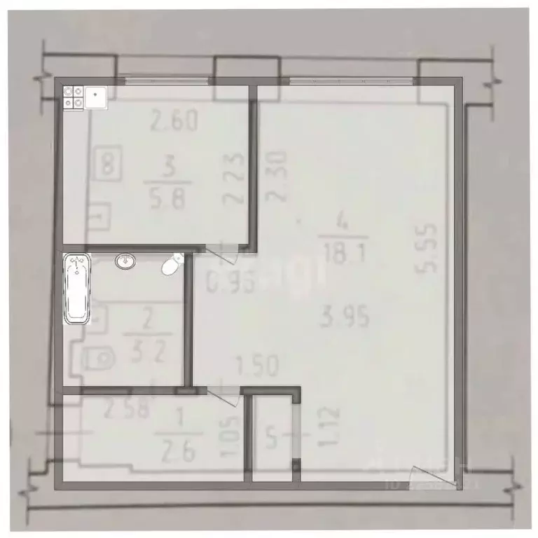
39 м2
Площадь
2
Комнаты
1
Этаж
1
Этажность

Дополнительная информация

Тип дома
кирпичный
Развернуть
Агент
+7 (982) 821-00-20
Начать чат с агентом

2-к кв. Удмуртия, Можга Можгинский район, Заречная ул., 6 (39.6 м)

Продается двухкомнатная квартира в двухквартирном кирпичном доме, индивидуальное отопление,совмещенный санузел с душевой кабиной, изолированные комнаты, просторная кухня, пластиковые окна. Пол, потолок - ж/б плиты, новая крыша- профнастил. Земельный участок 6 соток в долевой собственности.

Читать полностью

    Для того, чтобы купить двухкомнатную квартиру по адресу: Кватчи, ул. Заречная, 6, позвоните по телефону +7 (982) 821-00-20. Торопитесь! Объявление №30070292402 о продаже двухкомнатной квартиры опубликовано Вчера.

    Позвонить Написать
    2 500 000 Р30 970 $ или 26 450
    Агент
    +7 (982) 821-00-20
    Начать чат с агентом
    Похожие предложения
    2-к кв. Удмуртия, Можга Можгинский район, Заречная ул., 6 (39.3 м) - Фото 1
    2-к кв. Удмуртия, Можга Можгинский район, Заречная ул., 6 (39.3 м) - Фото 2
    2-комнатная квартира, общая площадь 39м²

    Продается двухкомнатная квартира в двухквартирном кирпичном доме, индивидуальное отопление, раздельный санузел,ванная, изолированные комнаты, пластиковые окна. Пол, потолок - ж/б плиты, новая крыша- профнастил. Земельный участок 6 соток в долевой собственности....
    • 39 м²
    • 2-ком
    • 1/1 эт.
    • кирпичный
    2 500 000 Р
    Агент
    +7 (982) Показать номер
    Посмотреть контакты
    4-к кв. Удмуртия, Можгинский район, д. Ныша ул. Молодежная, 7 (76.6 м) - Фото 1
    4-к кв. Удмуртия, Можгинский район, д. Ныша ул. Молодежная, 7 (76.6 м) - Фото 2
    4-комнатная квартира, общая площадь 76м², кухня 8м²

    У вас большая семья, хотите жить в комфортных условиях? Тогда это предложение именно для Вас Продается 4-х комнатная квартира по цене 2-комнатной. Общей площадью 76,6 м. кв. Квартира расположена на 1 этаже 4-х этажного многоквартирного дома в 15 минутах...
    • 76 м²
    • 4-ком
    • 1/4 эт.
    2 500 000 Р
    Агент
    +7 (912) Показать номер
    Посмотреть контакты
    1-к кв. Удмуртия, Завьяловский район, д. Пирогово Мостовая ул., 28 ... - Фото 1
    1-к кв. Удмуртия, Завьяловский район, д. Пирогово Мостовая ул., 28 ... - Фото 2
    1-комнатная квартира, общая площадь 37м², кухня 10м²

    продается квартира в экологически чистом районе, с хорошей транспортной развязкой- дом кирпичный, 2012 года постройки,- в шаговой доступности торговые центры, магазины, большой спортивный комплекс с плавательным бассейном.- в доме своя котельная, за счет...
    • 37 м²
    • 1-ком
    • 4/5 эт.
    • кирпичный
    2 550 000 Р
    Агент
    +7 (912) Показать номер
    Посмотреть контакты
    2-к кв. Удмуртия, Можга Можгинский район, Дубительский пер., 4 (44.62 ... - Фото 1
    2-к кв. Удмуртия, Можга Можгинский район, Дубительский пер., 4 (44.62 ... - Фото 2
    2-комнатная квартира, общая площадь 44м², жилая 33м², кухня 6м²

    Продаётся благоустроенная двухкомнатная квартира площадью 44,6 квадратных метров расположенная на втором этаже двухэтажного кирпичного дома. Квартира просторная, с солнечной стороны выходят окна .Окна деревянные ,но хорошего качества. Санузел совмещённый...
    • 44 м²
    • 2-ком
    • 2/2 эт.
    2 599 000 Р
    Агент
    +7 (912) Показать номер
    Посмотреть контакты
    2-к кв. Удмуртия, Можга Можгинский район, Казанская ул., 15 (45.1 м) - Фото 1
    2-к кв. Удмуртия, Можга Можгинский район, Казанская ул., 15 (45.1 м) - Фото 2
    2-комнатная квартира, общая площадь 45м²

    Квартира в Дубительском микрорайоне, изолированные комнаты, застеклённый балкон, Полы, стены выровнены, натяжные потолки. Четвертый этаж этаж.Один взрослый собственник, без долгов и обременений. Школа, садики, магазины в шаговой доступности.
    • 45 м²
    • 2-ком
    • 4/5 эт.
    • панельный
    2 600 000 Р
    Агент
    +7 (982) Показать номер
    Посмотреть контакты

    Не нашли подходящего объявления?

    Оставьте заявку, и наши риэлторы подберут квартиру в районе Кватчи

    (0)