Реализация объекта недвижимости приостановлена

Информация о коттедже

202.0 м2
Площадь
2
Этажность
7.0 cоток
Участок

Дополнительная информация

Дом продаётся вместе с участком
есть
Развернуть

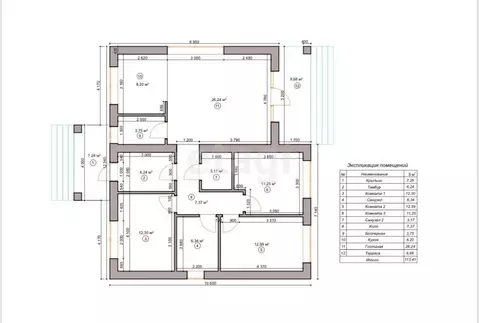
Дом в Удмуртия, Сарапул ул. Раскольникова, 104 (202 м)

Продается двухэтажный кирпичный дом в райое Старцевой горы. В доме предчистовая отделка, сделана разводка водопровда, канализации, электричества, теплые полы в прихожей, на кухне, в санузле. На первом этаже запланирована большая кухня, гостиная, 3 спальни, раздельный санузел. на втором этаже большая гостиная с панорамными окнами и видом на Каму, спальня, кабинет, санузел, большая лоджия. Водопровод и канализация центральные, электичество 220 и 380. Отопление газовое и электрическое, все оборудование установлено и зарегистрировано. На территории есть большой гараж 70.8 кв.м с автоматическими воротами и выходом во двор, огород 3 сотки с плодовыми деревьями, пособные помещения.

Читать полностью

    Реализация объекта недвижимости приостановлена

    Не нашли подходящего объявления?

    Оставьте заявку, и наши риэлторы подберут купить дом в районе Сарапула

    (0)