3 590 000 Р 46 520 $ или 39 570

Информация о квартире

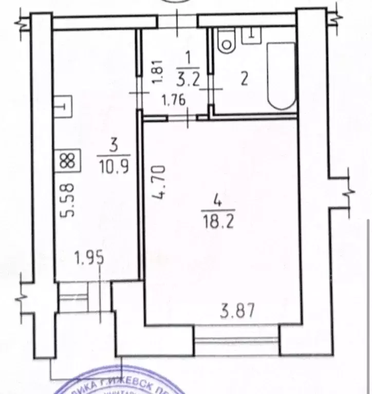
42 м2
Площадь
5 м2
Кухня
2
Комнаты
1
Этаж
4
Этажность

Дополнительная информация

Тип дома
кирпичный
Развернуть
Агент
+7 (982) 830-07-91
Начать чат с агентом

2-к кв. Удмуртия, Сарапул пос. Южный, ул. Фурманова, 22 (42.6 м)

Продается двухкомнатная квартира в самомазвитом районе города. Кирпичный дом ,1 этаж из 4.Теплая. Современный ремонт. Заменена сантехника и электрика. Натяжные потолки. Стяжка пола. Гардеробная. Подъезд чистый ,в хорошем состоянии. Под квартирой полноценная кладовая 9 м2. Есть общий чат для решения общедомовых вопросов. Рядом с домом детские сады, школы, сетевые продуктовые магазины, банк, аптеки, почтовое отделение, стадион, детская больница. До остановки общественного транспорта 2 минуты . Квартира в собственности. Один взрослый собственник. Готовый пакет документов - быстрый выход на сделку. Если вас заинтересовало данное предложение-добавляйте в избранное и обговаривайте время для просмотра.По цене готовы разговаривать . Код пользователя: 171568Номер в базе:

Читать полностью

    Для того, чтобы купить двухкомнатную квартиру по адресу: Сарапул, ул. Фурманова, 22, позвоните по телефону +7 (982) 830-07-91. Торопитесь! Объявление №30093318032 о продаже двухкомнатной квартиры опубликовано 18 февраля 2026.

    Позвонить Написать
    3 590 000 Р46 520 $ или 39 570
    Агент
    +7 (982) 830-07-91
    Начать чат с агентом
    Похожие предложения
    Квартира-студия: Ижевск, Тверская улица, 51к1 (28.43 м) - Фото 1
    Квартира-студия: Ижевск, Тверская улица, 51к1 (28.43 м) - Фото 2
    студия, общая площадь 28м², жилая 18м²

    Продаётся квартира-студия в современном жилом комплексе Новая Тверская . Состояние и отделка: · Полы — ламинат высокой плотности. · Ванная комната — плитка (кафель), сантехника в идеальном состоянии. · Остекление — лоджия застеклена, выходит во двор....
    • 28 м²
    • студия-ком
    • 4/18 эт.
    3 700 000 Р
    Агент
    +7 (982) Показать номер
    Посмотреть контакты
    1-к кв. Удмуртия, Ижевск ул. Тимирязева, 9 (35.6 м) - Фото 1
    1-к кв. Удмуртия, Ижевск ул. Тимирязева, 9 (35.6 м) - Фото 2
    1-комнатная квартира, общая площадь 35м², жилая 18м², кухня 10м²

    Продается теплая, уютная 1 комнатная квартира. О ДОМЕ:- Дом кирпичный. В подъезде сделан ремонт.О КВАРТИРЕ:- Комната правильной формы что удобно для расположение мебели.- Прихожая вместительная.- Ванная комната выложена кафелем.- Трубы помененые.ВАЖНОЕ...
    • 35 м²
    • 1-ком
    • 2/9 эт.
    • кирпичный
    3 600 000 Р
    Агент
    +7 (982) Показать номер
    Посмотреть контакты
    1-комнатная квартира: Ижевск, улица имени Татьяны Барамзиной, 26 (33.1 ... - Фото 1
    1-комнатная квартира: Ижевск, улица имени Татьяны Барамзиной, 26 (33.1 ... - Фото 2
    1-комнатная квартира, общая площадь 33м², жилая 18м², кухня 6м²

    Продам однокомнатную улучшенной планировки, комфортную, теплую,квартиру, на 3 этаже кирпичного дома ,в Уcтиновcком pайонe г. Ижевска на ул. Taтьяны Барамзинoй в отдалении oт шумных доpог, гдe cпoкойно и тиxo. По состоянию, заезжай и живи, c косметическимемонтом....
    • 33 м²
    • 1-ком
    • 3/9 эт.
    3 550 000 Р
    Агент
    +7 (912) Показать номер
    Посмотреть контакты
    3-к кв. Удмуртия, Ижевск Тверская ул., 52 (68.1 м) - Фото 1
    3-к кв. Удмуртия, Ижевск Тверская ул., 52 (68.1 м) - Фото 2
    3-комнатная квартира, общая площадь 68м², кухня 6м²

    В продаже просторная трехкомнатная квартира на Тверской Да, квартира требует ремонта, но это ваша возможность обустроить себе жилье по своему вкусу и дизайну.Квартира необычной планировки, имеет множество мест скрытого хранения вещей, в том числе темная...
    • 68 м²
    • 3-ком
    • 2/5 эт.
    3 550 000 Р
    Агент
    +7 (912) Показать номер
    Посмотреть контакты
    2-к кв. Удмуртия, Ижевск ул. 9 Января, 271 (46.2 м) - Фото 1
    2-к кв. Удмуртия, Ижевск ул. 9 Января, 271 (46.2 м) - Фото 2
    2-комнатная квартира, общая площадь 46м², кухня 6м²

    Просторная двухкомнатная квартира площадью 46,2 кв.м. в кирпичном доме с хорошей звукоизоляцией, требует ремонта, что позволяет новому владельцу реализовать собственный дизайн-проект. При этом все скрытые инженерные системы приведены в порядок: произведена...
    • 46 м²
    • 2-ком
    • 10/12 эт.
    • кирпичный
    3 700 000 Р
    Агент
    +7 (912) Показать номер
    Посмотреть контакты

    Не нашли подходящего объявления?

    Оставьте заявку, и наши риэлторы подберут квартиру в районе Сарапула

    (0)