4 890 270 Р 60 210 $ или 52 110

Информация о квартире

30 м2
Площадь
17 м2
Жилая
студия
Комнат
5
Этаж
8
Этажность
Развернуть
Агент
+7 (912) 741-22-95
Начать чат с агентом

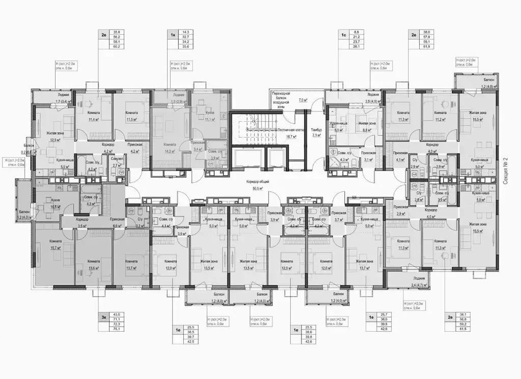
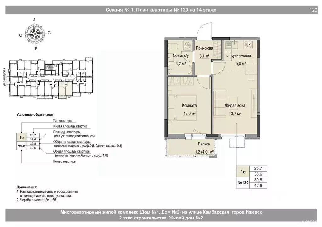
Квартира-студия: Первомайский, ЖК Икигай (30 м)

Продается студия площадью 30.00 кв. м с предчистовой отделкой. Квартира находится в жилом комплексе комфорт+ «Икигай от федерального девелопера «Железно . «Икигай – это камерный жилой квартал, вдохновленный эстетикой Японии. Цветочные сады, озеленение фасадов, природный камень в отделке и настоящий дом-пагода. Уникальное сочетание традиций, современности и уюта • теперь в Ижевске. Архитектура Средняя этажность, соразмерная человеку Экологичный керамический кирпич Природные оттенки экстерьера Мягкие пастельные тона, благоприятно влияющие на психологическое состояние резидентов Зеленый мини-город Просторный двор площадью 15 ГА, закрытый от автомобилей и посторонних Многоуровневое озеленение Вишневый сад с именными деревьями Фитосад и чайные домики Оранжерея на крыше Восточный зимний сад с питьевым фонтанчиком Лесные тропинки Благоустройство • Концептуальное лобби в стиле Джапанди • Центральная аллея и прогулочный променад • Площадки для мероприятий и праздников • Тихие уголки для йоги и медитаций • Игровые комплексы для детей и подростков • Протяженные велодорожки Окружение • Продуктовые магазины, бытовые службы, кафе, рестораны • Торговый центр, спортивные и творческие секции

Читать полностью
    Позвонить Написать
    4 890 270 Р60 210 $ или 52 110
    Агент
    +7 (912) 741-22-95
    Начать чат с агентом
    Похожие предложения
    Квартира-студия: Первомайский, ЖК Икигай (30 м) - Фото 1
    Квартира-студия: Первомайский, ЖК Икигай (30 м) - Фото 2
    студия, общая площадь 30м², жилая 17м²

    Продается студия площадью 30.00 кв. м с предчистовой отделкой. Квартира находится в жилом комплексе комфорт+ «Икигай от федерального девелопера «Железно . «Икигай – это камерный жилой квартал, вдохновленный эстетикой Японии. Цветочные сады, озеленение...
    • 30 м²
    • студия-ком
    • 2/8 эт.
    4 826 325 Р
    Агент
    +7 (912) Показать номер
    Посмотреть контакты
    2-к кв. Удмуртия, Ижевск проезд Льва Толстого, 14 (37.23 м) - Фото 1
    2-к кв. Удмуртия, Ижевск проезд Льва Толстого, 14 (37.23 м) - Фото 2
    2-комнатная квартира, общая площадь 37м², кухня 14м²

    Жилой дом Гравитация - притягивает с первого взгляда.ИНФРАСТРУКТУРАДом расположен в Индустриальном районе города на улице Серова (жилой район Культбаза).Всё самое важное рядом:- детские сады,- школы/ лицеи,- поликлиника и медцентры,- парк Березовая...
    • 37 м²
    • 2-ком
    • 15/24 эт.
    • блочный
    4 850 000 Р
    Агент
    +7 (932) Показать номер
    Посмотреть контакты
    1-к кв. Удмуртия, Ижевск проезд Льва Толстого, 14 (36.82 м) - Фото 1
    1-к кв. Удмуртия, Ижевск проезд Льва Толстого, 14 (36.82 м) - Фото 2
    1-комнатная квартира, общая площадь 36м², кухня 9м²

    Жилой дом Гравитация - притягивает с первого взгляда.ИНФРАСТРУКТУРАДом расположен в Индустриальном районе города на улице Серова (жилой район Культбаза).Всё самое важное рядом:- детские сады,- школы/ лицеи,- поликлиника и медцентры,- парк Березовая...
    • 36 м²
    • 1-ком
    • 15/24 эт.
    • блочный
    4 915 000 Р
    Агент
    +7 (932) Показать номер
    Посмотреть контакты
    Студия Удмуртия, Ижевск Игринская ул. (39.8 м) - Фото 1
    Студия Удмуртия, Ижевск Игринская ул. (39.8 м) - Фото 2
    студия, общая площадь 39м², кухня 5м²

    ЖК Крылья — это комплекс, который объединяет в себе современные технологичные инженерные решения и стильную архитектуру.Жилой комплекс находится в Первомайском районе города Ижевск с развитой инфраструктурой и активно развивающейся жилой застройкой.Преимущества...
    • 39 м²
    • студия-ком
    • 14/18 эт.
    4 863 000 Р
    Агент
    +7 (962) Показать номер
    Посмотреть контакты
    Студия Удмуртия, Ижевск Игринская ул. (39.8 м) - Фото 1
    Студия Удмуртия, Ижевск Игринская ул. (39.8 м) - Фото 2
    студия, общая площадь 39м², кухня 5м²

    ЖК Крылья — это комплекс, который объединяет в себе современные технологичные инженерные решения и стильную архитектуру.Жилой комплекс находится в Первомайском районе города Ижевск с развитой инфраструктурой и активно развивающейся жилой застройкой.Преимущества...
    • 39 м²
    • студия-ком
    • 14/18 эт.
    4 863 000 Р
    Агент
    +7 (962) Показать номер
    Посмотреть контакты

    Не нашли подходящего объявления?

    Оставьте заявку, и наши риэлторы подберут квартиру в новостройке в районе Первомайского

    (0)