Реализация объекта недвижимости приостановлена

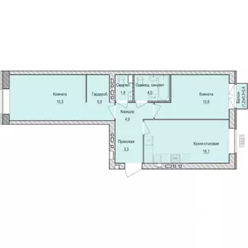
Информация о квартире

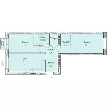
58.0 м2
Площадь
2
Комнаты
6
Этаж
8
Этажность
Развернуть

2-комнатная квартира: Первомайский, ЖК Знак, 20 (58 м)

Записывайтесь на просмотр Продается 2-комнатная квартира площадью 58.00 кв. м. с предчистовой отделкой. Квартира находится в жилом комплексе комфорт-класса ZNAK, расположенном в районе ул. Берша. Концепция «15-минутного города – все необходимое рядом: школа, детский сад, Торговый центр, кафе, магазины, парк - находятся в пешей доступности. Идея архитектора Облик проекта был разработан известным столичным архитектором Алексеем Ивановым. Размеренный европейский уют, яркие архитектурные элементы, продуманное до мелочей пространство, детали которого совершенствовались многими поколениями мастеров. Дома в проекте строятся исключительно из кирпича – надежного, экологичного и долговечного материала, который обеспечивает высокую сохранность тепла и качественную шумоизоляцию. Подъезд как искусство Подъезды новых домов похожи на произведения искусства: просторные холлы, большие люстры и картины. В отделке используются экологичные материалы и природные оттенки, интерьер дополняют настенные панно, мебель и дизайнерские элементы. Экономия и оптимизация энергопотребления достигается за счёт «умного освещения : датчики реагирует на движения людей и выключают свет только тогда, когда в подъезде никого нет. Идея автора благоустройства Это дворы мечты в городе будущего – в основу их формирования заложена идея связи и единения с природой. Здесь предусмотрены идеальные сценарии для жизни в окружении зелени: интересный и безопасный досуг на площадках для детей, уютный и приятный отдых для взрослых. Дворы жилого комплекса созданы для людей, поэтому парковки для транспорта расположены за его пределами. Территория засажена большим количеством лиственных и хвойных деревьев, кустарниками и цветами. Атмосферу уюта и безопасности в темное время суток создает многоуровневое освещение. Площадки для малышей и подростков защищены мягким покрытием, а для тихого отдыха жителей размещаются лаунж-пространства, где каждый может расслабиться и полностью восстановить силы. Активные и тихие места находятся на комфортном расстоянии и не мешают друг другу. В городе будущего все, как в классической Европе: по периметру располагаются кафе и магазины, а в центре – пространство для общегородских событий.

Читать полностью

    Реализация объекта недвижимости приостановлена

    Не нашли подходящего объявления?

    Оставьте заявку, и наши риэлторы подберут квартиру в новостройке в районе Первомайского

    (0)