Реализация объекта недвижимости приостановлена

Информация о квартире

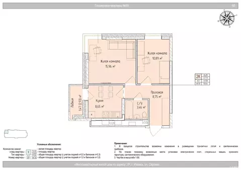
34.0 м2
Площадь
студия
Комнат
6
Этаж
8
Этажность
Развернуть

Квартира-студия: Первомайский, ЖК Икигай (34 м)

Продается студия площадью 34.00 кв. м с предчистовой отделкой. Квартира находится в жилом комплексе комфорт+ «Икигай от федерального девелопера «Железно . «Икигай – это камерный жилой квартал, вдохновленный эстетикой Японии. Цветочные сады, озеленение фасадов, природный камень в отделке и настоящий дом-пагода. Уникальное сочетание традиций, современности и уюта • теперь в Ижевске. Архитектура Средняя этажность, соразмерная человеку Экологичный керамический кирпич Природные оттенки экстерьера Мягкие пастельные тона, благоприятно влияющие на психологическое состояние резидентов Зеленый мини-город Просторный двор площадью 15 ГА, закрытый от автомобилей и посторонних Многоуровневое озеленение Вишневый сад с именными деревьями Фитосад и чайные домики Оранжерея на крыше Восточный зимний сад с питьевым фонтанчиком Лесные тропинки Благоустройство • Концептуальное лобби в стиле Джапанди • Центральная аллея и прогулочный променад • Площадки для мероприятий и праздников • Тихие уголки для йоги и медитаций • Игровые комплексы для детей и подростков • Протяженные велодорожки Окружение • Продуктовые магазины, бытовые службы, кафе, рестораны • Торговый центр, спортивные и творческие секции

Читать полностью

    Реализация объекта недвижимости приостановлена

    Не нашли подходящего объявления?

    Оставьте заявку, и наши риэлторы подберут квартиру в новостройке в районе Первомайского

    (0)