4 300 000 Р 53 100 $ или 45 460

Информация о коттедже

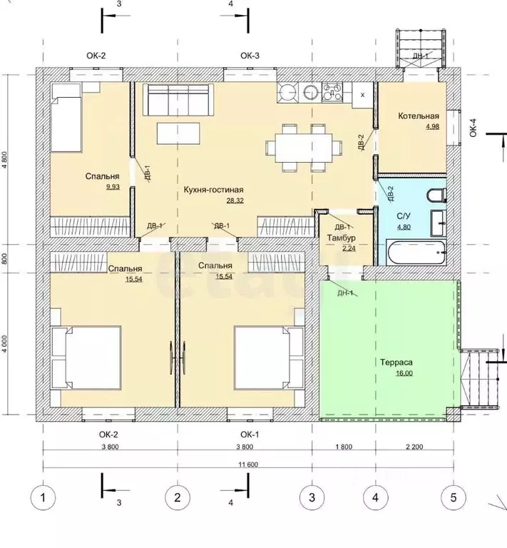
89 м2
Площадь
1
Этажность
9 cоток
Участок

Дополнительная информация

Дом продаётся вместе с участком
есть
Развернуть
Агент
+7 (912) 761-58-51
Начать чат с агентом

Дом в Удмуртия, Завьяловский район, д. Хохряки ул. Приозерная, 71 (89 ...

Просторный дом площадью 89 кв. м, расположенный всего в 200 метрах от живописного леса и пруда, предлагает комфортную жизнь на природе с полной городской инфраструктурой. Все необходимые объекты — школа, детский сад, магазины и аптека — находятся в шаговой доступности, а остановка общественного транспорта обеспечивает быструю связь с городом, дорога до которой занимает около 10 минут. Дом возведен из энергоэффективного газоблока с толщиной стен 300 мм, фундамент-плита. Система теплого пола, смонтированная по всему периметру первого этажа, создает равномерный и экономичный обогрев в холодное время года. В ближайших планах — завершение внутренней отделки с заливкой сухой стяжки и монтаж долговечной кровли из металлочерепицы. К дому прилагается земельный участок размером 9 соток, на территории которого уже расположен хозяйственный сарай и готов каркас под будущую мастерскую, что открывает широкие возможности для организации пространства под личные нужды. Подключение к электросети выполнено с установленным узлом учета на 380 В. Это предложение представляет собой готовое решение для тех, кто ценит современные строительные технологии, тишину и чистый воздух, не жертвуя при этом удобством ежедневной логистики. Код пользователя: 151823Номер в базе: 9929940

Читать полностью

    Для того, чтобы купить 1-этажный коттедж по адресу: Хохряки, Приозерная улица, 71, позвоните по телефону +7 (912) 761-58-51. Торопитесь! Объявление №50016425090 о продаже одноэтажного коттеджа опубликовано 06 октября 2025.

    Позвонить Написать
    4 300 000 Р53 100 $ или 45 460
    Агент
    +7 (912) 761-58-51
    Начать чат с агентом
    Похожие предложения
    Дом в Удмуртия, Завьяловский район, Опушкино кп  (63 м) - Фото 1
    Дом в Удмуртия, Завьяловский район, Опушкино кп  (63 м) - Фото 2
    1 этаж, общая площадь 62м², участок 10 соток

    Продается отличный, теплый, современный дом с земельным участком в новом коттеджном поселке Опушкино.* Новый микрорайон находится в с. Люкшудья по Шабердинскому тракту - время до города Ижевска на автомобиле - 10 минут по Шабердинскому тракту, либо объездной...
    • 1 эт.
    • 62 м²
    • 10 сот.
    4 250 000 Р
    Агент
    +7 (912) Показать номер
    Посмотреть контакты
    Дом в Завьяловский район, СНТ Новая Зоренька, Рассветная улица, 1 (75 ... - Фото 1
    Дом в Завьяловский район, СНТ Новая Зоренька, Рассветная улица, 1 (75 ... - Фото 2
    общая площадь 75м², участок 6 соток

    Старт продаж в посёлке «Новая Зоренька Рассрочка на дома от застройщика до 20 лет Первоначальный взнос – 30 1. Работаем со всеми ипотечными программами: Семейная, ИТ, Сельская, Комбо Аккредитованы во всех банках 2. Помощь в одобрении ипотеки осуществляют...
    • 75 м²
    • 6 сот.
    4 268 000 Р
    Агент
    +7 (982) Показать номер
    Посмотреть контакты
    Дом в Удмуртия, Завьяловский район, д. Сизево ул. Победы, 32 (65 м) - Фото 1
    Дом в Удмуртия, Завьяловский район, д. Сизево ул. Победы, 32 (65 м) - Фото 2
    1 этаж, общая площадь 65м², участок 8 соток

    Продается уютный дом в микрорайоне Добрый д. Сизево. Площадь участка полностью освоена: здесь расположены две практичные теплицы, баня и хозяйственные постройки для инвентаря. Территория огорожена с двух сторон. Жилой дом отличает рациональная планировка...
    • 1 эт.
    • 65 м²
    • 8 сот.
    4 300 000 Р
    Агент
    +7 (912) Показать номер
    Посмотреть контакты
    Дом в Удмуртия, Завьяловский район, с. Ягул ул. Черезова (130 м) - Фото 1
    Дом в Удмуртия, Завьяловский район, с. Ягул ул. Черезова (130 м) - Фото 2
    2 этажа, общая площадь 130м², участок 7 соток

    Продается великолепный 2-этажный дом площадью 130 кв.м, который станет идеальным местом для вашей семьи Этот уютный дом расположен на земельном участке площадью 7,5 соток и предлагает вам уникальную возможность воплотить свои мечты о комфортном жилье....
    • 2 эт.
    • 130 м²
    • 7 сот.
    4 399 999 Р
    Агент
    +7 (912) Показать номер
    Посмотреть контакты
    Дом в Удмуртия, Завьяловский район, д. Подшивалово ул. Мартовская, 39А ... - Фото 1
    Дом в Удмуртия, Завьяловский район, д. Подшивалово ул. Мартовская, 39А ... - Фото 2
    1 этаж, общая площадь 75м², участок 8 соток

    Старт продаж в новом поселке Светлый 3 от компании Зеон-Недвижимость Новинка 2024 года: МАССИВ полностью деревянный дом со вторым светом на железобетонной плите с теплыми полами Проект разрабатывался более 3-х лет, изготовлен на новейшем оборудовании...
    • 1 эт.
    • 75 м²
    • 8 сот.
    4 330 000 Р
    Агент
    +7 (982) Показать номер
    Посмотреть контакты

    Не нашли подходящего объявления?

    Оставьте заявку, и наши риэлторы подберут купить дом в районе Хохряки

    (0)