7 739 700 Р 95 540 $ или 82 400

Информация о квартире

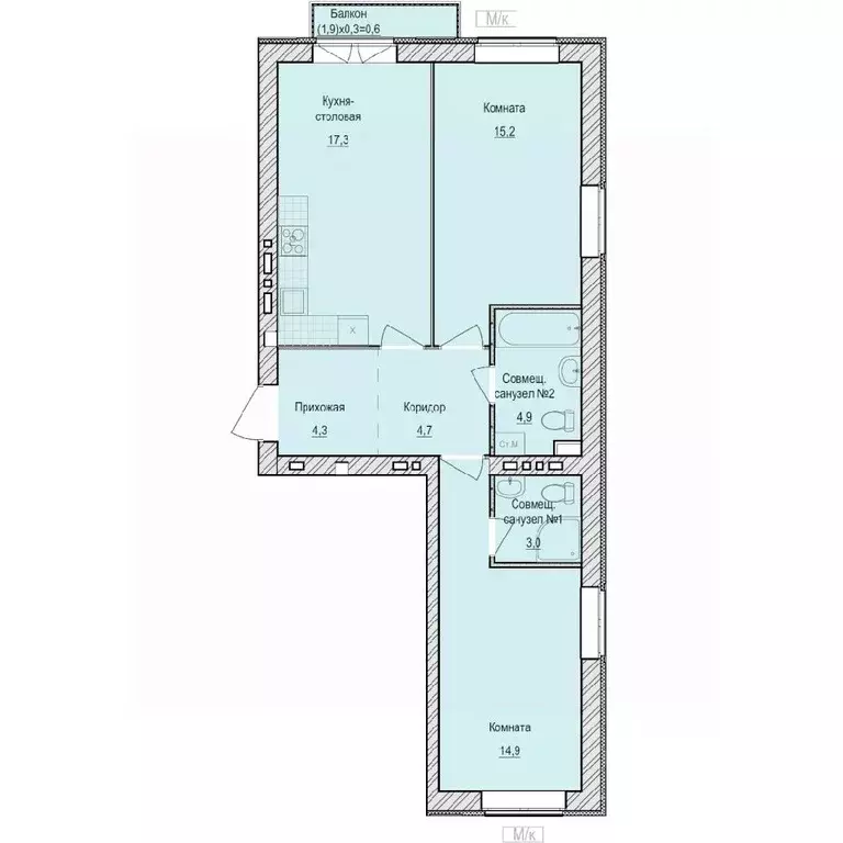
64 м2
Площадь
2
Комнаты
3
Этаж
6
Этажность

Дополнительная информация

Тип дома
кирпичный
Развернуть
Агент
+7 (901) 143-34-33
Начать чат с агентом

2-к кв. Удмуртия, Завьяловский район, с. Первомайский Санвилл жилой ...

Продаётся 2-комнатная квартира в строящемся доме (Дом 7), срок сдачи: III-кв. 2026, общей площадью 64.9 кв.м., на 3 этаже. Квартира от застройщика КОМОССТРОЙ. Покупка защищена ФЗ 214 с использованием эскроу счетов.Солнечные кварталы Санвилл это жилой микрорайон с кирпичными домами и уникальными для нашего города урбанвиллами. Мы строим его в уже знакомом месте - на границе Завьяловского района и города Ижевска, вдоль улицы Берша. Дворы здесь будут наполнены зеленью Мы выполняем их по индивидуальному проекту ландшафтного дизайна. Высаживаем огромное количество декоративных растений, полноразмерных деревьев, формируем клумбы из цветущих кустарников и душистых полевых трав.Квартира:Квартиру проектируем в современном и практичном евроформате, с вместительными кухнями-столовыми, удобными нишами под гардеробные и мастер-спальнями. До передачи квартиры собственнику мы выполняем в ней все капитальные и грязные работы. Стены подготавливаем под оклейку обоями. На полу выполняем полусухую стяжку со звукоизолирующим слоем. Предусмотрена периметральная поквартирная разводка труб отопления в конструкции пола. Устанавливаем стильные стальные панельные радиаторы с нижней подводкой. Устанавливаем клапаны приточной вентиляции, обеспечивающие оптимальный режим притока свежего воздуха в помещение. Приточный клапан оснащен системами шумоизоляции и фильтрации воздуха.Устанавливаем надежные металлические входные двери с тепло- и звукоизоляцией. Выполняем прокладку электросетей, устанавливаем электросчетчики, одну розетку и один выключатель в прихожей.По дополнительному соглашению мы можем выполнить в вашей квартире чистовую отделку по нашему типовому проекту. Умный дом:В Солнечных кварталах Санвилл мы реализуем новый, расширенный пакет системы Умный Дом Домофоны с системой распознавания лиц, автоматизация контроля прохода и проезда на придомовую территорию, видеонаблюдение через приложение в смартфоне и автоматизированный сбор и передача показаний счетчиков. Функции системы сделают вашу жизнь более комфортной и безопасной.Все вопросы можно уточнить в отделе продаж по телефону указанному в объявлении. Звоните

Читать полностью
    Позвонить Написать
    7 739 700 Р95 540 $ или 82 400
    Агент
    +7 (901) 143-34-33
    Начать чат с агентом
    Похожие предложения в Первомайском
    3-к кв. Удмуртия, Завьяловский район, с. Первомайский Город ... - Фото 1
    3-к кв. Удмуртия, Завьяловский район, с. Первомайский Город ... - Фото 2
    3-комнатная квартира, общая площадь 70м²

    Продаётся 3-комнатная квартира в сданном доме (Дом 24), срок сдачи: IV-кв. 2025, общей площадью 70.3 кв.м., на 9 этаже. Объявление от застройщика КОМОССТРОЙ. Покупка защищена ФЗ 214 с использованием эскроу счетов.Город Оружейников расположен вдоль улицы...
    • 70 м²
    • 3-ком
    • 9/10 эт.
    7 602 900 Р
    Агент
    +7 (992) Показать номер
    Посмотреть контакты
    2-к кв. Удмуртия, Завьяловский район, с. Первомайский Икигай жилой ... - Фото 1
    2-к кв. Удмуртия, Завьяловский район, с. Первомайский Икигай жилой ... - Фото 2
    2-комнатная квартира, общая площадь 51м², жилая 26м², кухня 8м²

    Продается 2-комнатная квартира площадью 51.00 кв. м с предчистовой отделкой. Квартира находится в жилом комплексе комфорт+ Икигай от федерального девелопера Железно . Икигай - это камерный жилой квартал, вдохновленный эстетикой Японии. Цветочные сады,...
    • 51 м²
    • 2-ком
    • 3/8 эт.
    • кирпичный
    7 753 285 Р
    Агент
    +7 (931) Показать номер
    Посмотреть контакты
    1-к кв. Удмуртия, Завьяловский район, с. Первомайский Икигай жилой ... - Фото 1
    1-к кв. Удмуртия, Завьяловский район, с. Первомайский Икигай жилой ... - Фото 2
    1-комнатная квартира, общая площадь 47м², жилая 10м², кухня 18м²

    Продается 1-комнатная квартира площадью 47.00 кв. м с предчистовой отделкой. Квартира находится в жилом комплексе комфорт+ Икигай от федерального девелопера Железно . Икигай - это камерный жилой квартал, вдохновленный эстетикой Японии. Цветочные сады,...
    • 47 м²
    • 1-ком
    • 5/8 эт.
    • кирпичный
    7 716 774 Р
    Агент
    +7 (931) Показать номер
    Посмотреть контакты
    1-к кв. Удмуртия, Завьяловский район, с. Первомайский Икигай жилой ... - Фото 1
    1-к кв. Удмуртия, Завьяловский район, с. Первомайский Икигай жилой ... - Фото 2
    1-комнатная квартира, общая площадь 41м², жилая 14м², кухня 16м²

    Продается 1-комнатная квартира площадью 41.00 кв. м с чистовой отделкой. Квартира находится в жилом комплексе комфорт+ Икигай от федерального девелопера Железно . Икигай - это камерный жилой квартал, вдохновленный эстетикой Японии. Цветочные сады,...
    • 41 м²
    • 1-ком
    • 6/6 эт.
    • кирпичный
    7 784 902 Р
    Агент
    +7 (931) Показать номер
    Посмотреть контакты
    2-к кв. Удмуртия, Завьяловский район, с. Первомайский Санвилл жилой ... - Фото 1
    2-к кв. Удмуртия, Завьяловский район, с. Первомайский Санвилл жилой ... - Фото 2
    2-комнатная квартира, общая площадь 63м²

    Продаётся 2-комнатная квартира в строящемся доме (Дом 5), срок сдачи: I-кв. 2026, общей площадью 63 кв.м., на 3 этаже. Квартира от застройщика КОМОССТРОЙ. Покупка защищена ФЗ 214 с использованием эскроу счетов.Солнечные кварталы Санвилл это жилой микрорайон...
    • 63 м²
    • 2-ком
    • 3/5 эт.
    • кирпичный
    7 755 800 Р
    Агент
    +7 (901) Показать номер
    Посмотреть контакты

    Не нашли подходящего объявления?

    Оставьте заявку, и наши риэлторы подберут квартиру в новостройке в районе Первомайского

    (0)