Реализация объекта недвижимости приостановлена

Информация о квартире

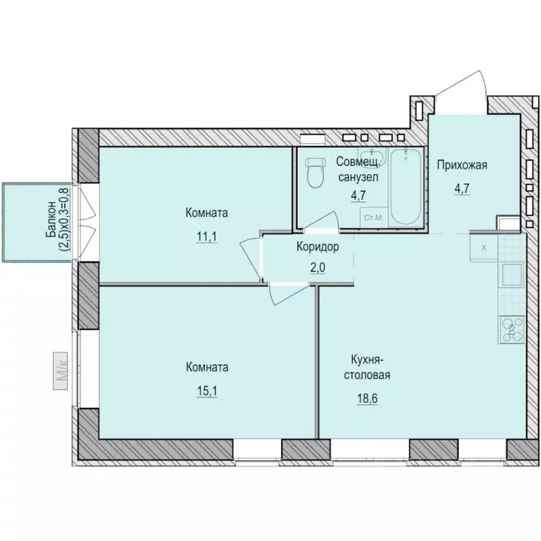
57.0 м2
Площадь
2
Комнаты
4
Этаж
5
Этажность

Дополнительная информация

Тип дома
кирпичный
Развернуть

2-к кв. Удмуртия, Завьяловский район, с. Первомайский Санвилл жилой ...

Продаётся 2-комнатная квартира в строящемся доме (Дом 5), срок сдачи: I-кв. 2026, общей площадью 57 кв.м., на 4 этаже. Квартира от застройщика КОМОССТРОЙ. Покупка защищена ФЗ 214 с использованием эскроу счетов.Солнечные кварталы Санвилл это жилой микрорайон с кирпичными домами и уникальными для нашего города урбанвиллами. Мы строим его в уже знакомом месте - на границе Завьяловского района и города Ижевска, вдоль улицы Берша. Дворы здесь будут наполнены зеленью Мы выполняем их по индивидуальному проекту ландшафтного дизайна. Высаживаем огромное количество декоративных растений, полноразмерных деревьев, формируем клумбы из цветущих кустарников и душистых полевых трав.Квартира:Квартиру проектируем в современном и практичном евроформате, с вместительными кухнями-столовыми, удобными нишами под гардеробные и мастер-спальнями. До передачи квартиры собственнику мы выполняем в ней все капитальные и грязные работы. Стены подготавливаем под оклейку обоями. На полу выполняем полусухую стяжку со звукоизолирующим слоем. Предусмотрена периметральная поквартирная разводка труб отопления в конструкции пола. Устанавливаем стильные стальные панельные радиаторы с нижней подводкой. Устанавливаем клапаны приточной вентиляции, обеспечивающие оптимальный режим притока свежего воздуха в помещение. Приточный клапан оснащен системами шумоизоляции и фильтрации воздуха.Устанавливаем надежные металлические входные двери с тепло- и звукоизоляцией. Выполняем прокладку электросетей, устанавливаем электросчетчики, одну розетку и один выключатель в прихожей.По дополнительному соглашению мы можем выполнить в вашей квартире чистовую отделку по нашему типовому проекту. Умный дом:В Солнечных кварталах Санвилл мы реализуем новый, расширенный пакет системы Умный Дом Домофоны с системой распознавания лиц, автоматизация контроля прохода и проезда на придомовую территорию, видеонаблюдение через приложение в смартфоне и автоматизированный сбор и передача показаний счетчиков. Функции системы сделают вашу жизнь более комфортной и безопасной.Все вопросы можно уточнить в отделе продаж по телефону указанному в объявлении. Звоните

Читать полностью

    Реализация объекта недвижимости приостановлена

    Не нашли подходящего объявления?

    Оставьте заявку, и наши риэлторы подберут квартиру в новостройке в районе Первомайского

    (0)