7 034 900 Р 86 650 $ или 74 800

Информация о квартире

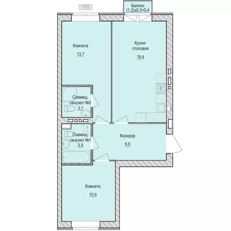
60 м2
Площадь
2
Комнаты
5
Этаж
5
Этажность

Дополнительная информация

Тип дома
кирпичный
Развернуть
Агент
КОМОССТРОЙ (застройщик)
+7 (901) 143-34-33
Начать чат с агентом

2-к кв. Удмуртия, Завьяловский район, с. Первомайский Санвилл жилой ...

Продаётся 2-комнатная квартира в строящемся доме (Дом 5), срок сдачи: I-кв. 2026, общей площадью 60.9 кв.м., на 5 этаже. Квартира от застройщика КОМОССТРОЙ. Покупка защищена ФЗ 214 с использованием эскроу счетов.Солнечные кварталы Санвилл это жилой микрорайон с кирпичными домами и уникальными для нашего города урбанвиллами. Мы строим его в уже знакомом месте - на границе Завьяловского района и города Ижевска, вдоль улицы Берша. Дворы здесь будут наполнены зеленью Мы выполняем их по индивидуальному проекту ландшафтного дизайна. Высаживаем огромное количество декоративных растений, полноразмерных деревьев, формируем клумбы из цветущих кустарников и душистых полевых трав.Квартира:Квартиру проектируем в современном и практичном евроформате, с вместительными кухнями-столовыми, удобными нишами под гардеробные и мастер-спальнями. До передачи квартиры собственнику мы выполняем в ней все капитальные и грязные работы. Стены подготавливаем под оклейку обоями. На полу выполняем полусухую стяжку со звукоизолирующим слоем. Предусмотрена периметральная поквартирная разводка труб отопления в конструкции пола. Устанавливаем стильные стальные панельные радиаторы с нижней подводкой. Устанавливаем клапаны приточной вентиляции, обеспечивающие оптимальный режим притока свежего воздуха в помещение. Приточный клапан оснащен системами шумоизоляции и фильтрации воздуха.Устанавливаем надежные металлические входные двери с тепло- и звукоизоляцией. Выполняем прокладку электросетей, устанавливаем электросчетчики, одну розетку и один выключатель в прихожей.По дополнительному соглашению мы можем выполнить в вашей квартире чистовую отделку по нашему типовому проекту. Умный дом:В Солнечных кварталах Санвилл мы реализуем новый, расширенный пакет системы Умный Дом Домофоны с системой распознавания лиц, автоматизация контроля прохода и проезда на придомовую территорию, видеонаблюдение через приложение в смартфоне и автоматизированный сбор и передача показаний счетчиков. Функции системы сделают вашу жизнь более комфортной и безопасной.Все вопросы можно уточнить в отделе продаж по телефону указанному в объявлении. Звоните

Читать полностью
    Позвонить Написать
    7 034 900 Р86 650 $ или 74 800
    Агент
    КОМОССТРОЙ (застройщик)
    +7 (901) 143-34-33
    Начать чат с агентом
    Похожие предложения в Первомайском
    2-к кв. Удмуртия, Завьяловский район, с. Первомайский ул. Архитектора ... - Фото 1
    2-к кв. Удмуртия, Завьяловский район, с. Первомайский ул. Архитектора ... - Фото 2
    2-комнатная квартира, общая площадь 62м²

    Продаётся 2-комнатная квартира в сданном доме (Дом 1), срок сдачи: IV-кв. 2023, общей площадью 62.8 кв.м., на 2 этаже. Квартира от застройщика КОМОССТРОЙ. Покупка защищена ФЗ 214 с использованием эскроу счетов.Солнечные кварталы Санвилл это жилой микрорайон...
    • 62 м²
    • 2-ком
    • 2/5 эт.
    • кирпичный
    7 056 000 Р
    Агент
    +7 (901) Показать номер
    Посмотреть контакты
    2-к кв. Удмуртия, Завьяловский район, с. Первомайский Санвилл жилой ... - Фото 1
    2-к кв. Удмуртия, Завьяловский район, с. Первомайский Санвилл жилой ... - Фото 2
    2-комнатная квартира, общая площадь 59м²

    Продаётся 2-комнатная квартира в строящемся доме (Дом 5), срок сдачи: I-кв. 2026, общей площадью 59.7 кв.м., на 5 этаже. Квартира от застройщика КОМОССТРОЙ. Покупка защищена ФЗ 214 с использованием эскроу счетов.Солнечные кварталы Санвилл это жилой микрорайон...
    • 59 м²
    • 2-ком
    • 5/5 эт.
    • кирпичный
    6 968 600 Р
    Агент
    +7 (901) Показать номер
    Посмотреть контакты
    2-к кв. Удмуртия, Завьяловский район, с. Первомайский Санвилл жилой ... - Фото 1
    2-к кв. Удмуртия, Завьяловский район, с. Первомайский Санвилл жилой ... - Фото 2
    2-комнатная квартира, общая площадь 60м²

    Продаётся 2-комнатная квартира в строящемся доме (Дом 5), срок сдачи: I-кв. 2026, общей площадью 60.9 кв.м., на 2 этаже. Квартира от застройщика КОМОССТРОЙ. Покупка защищена ФЗ 214 с использованием эскроу счетов.Солнечные кварталы Санвилл это жилой микрорайон...
    • 60 м²
    • 2-ком
    • 2/5 эт.
    • кирпичный
    6 971 700 Р
    Агент
    +7 (901) Показать номер
    Посмотреть контакты
    2-к кв. Удмуртия, Завьяловский район, с. Первомайский Санвилл жилой ... - Фото 1
    2-к кв. Удмуртия, Завьяловский район, с. Первомайский Санвилл жилой ... - Фото 2
    2-комнатная квартира, общая площадь 59м²

    Продаётся 2-комнатная квартира в строящемся доме (Дом 5), срок сдачи: I-кв. 2026, общей площадью 59.7 кв.м., на 2 этаже. Квартира от застройщика КОМОССТРОЙ. Покупка защищена ФЗ 214 с использованием эскроу счетов.Солнечные кварталы Санвилл это жилой микрорайон...
    • 59 м²
    • 2-ком
    • 2/5 эт.
    • кирпичный
    6 902 300 Р
    Агент
    +7 (901) Показать номер
    Посмотреть контакты
    2-к кв. Удмуртия, Завьяловский район, с. Первомайский Санвилл жилой ... - Фото 1
    2-к кв. Удмуртия, Завьяловский район, с. Первомайский Санвилл жилой ... - Фото 2
    2-комнатная квартира, общая площадь 59м²

    Продаётся 2-комнатная квартира в строящемся доме (Дом 5), срок сдачи: I-кв. 2026, общей площадью 59.7 кв.м., на 3 этаже. Квартира от застройщика КОМОССТРОЙ. Покупка защищена ФЗ 214 с использованием эскроу счетов.Солнечные кварталы Санвилл это жилой микрорайон...
    • 59 м²
    • 2-ком
    • 3/5 эт.
    • кирпичный
    6 902 300 Р
    Агент
    +7 (901) Показать номер
    Посмотреть контакты

    Не нашли подходящего объявления?

    Оставьте заявку, и наши риэлторы подберут квартиру в новостройке в районе Первомайского

    (0)