Реализация объекта недвижимости приостановлена

Информация о квартире

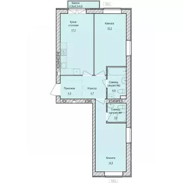
45.0 м2
Площадь
9.0 м2
Жилая
17.0 м2
Кухня
1
Комната
5
Этаж
8
Этажность

Дополнительная информация

Тип дома
кирпичный
Развернуть

1-к кв. Удмуртия, Завьяловский район, с. Первомайский Икигай жилой ...

Продается 1-комнатная квартира площадью 45.00 кв. м с предчистовой отделкой. Квартира находится в жилом комплексе комфорт+ Икигай от федерального девелопера Железно . Икигай - это камерный жилой квартал, вдохновленный эстетикой Японии. Цветочные сады, озеленение фасадов, природный камень в отделке и настоящий дом-пагода. Уникальное сочетание традиций, современности и уюта • теперь в Ижевске. АрхитектураСредняя этажность, соразмерная человекуЭкологичный керамический кирпичПриродные оттенки экстерьераМягкие пастельные тона, благоприятно влияющие на психологическое состояние резидентов Зеленый мини-городПросторный двор площадью 15 ГА, закрытый от автомобилей и постороннихМногоуровневое озеленение Вишневый сад с именными деревьямиФитосад и чайные домикиОранжерея на крышеВосточный зимний сад с питьевым фонтанчиком Лесные тропинки Благоустройство• Концептуальное лобби в стиле Джапанди• Центральная аллея и прогулочный променад• Площадки для мероприятий и праздников• Тихие уголки для йоги и медитаций• Игровые комплексы для детей и подростков• Протяженные велодорожки Окружение• Продуктовые магазины, бытовые службы, кафе, рестораны• Торговый центр, спортивные и творческие секции

Читать полностью

    Реализация объекта недвижимости приостановлена

    Не нашли подходящего объявления?

    Оставьте заявку, и наши риэлторы подберут квартиру в новостройке в районе Первомайского

    (0)