7 700 000 Р 95 230 $ или 81 990

Информация о коттедже

103 м2
Площадь
1
Этажность
10 cоток
Участок

Дополнительная информация

Дом продаётся вместе с участком
есть
Развернуть
Агент
+7 (982) 991-68-77
Начать чат с агентом

Дом в Удмуртия, Завьяловский район, д. Старый Чультем, Коттеджный ...

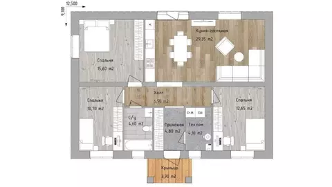
Продаётся уютный, теплый и просторный каменный дом в коттеджном посёлке Ближняя Усадьба , мкр Малиновка , ул. Еловая. Дом 2024 года постройки, площадью 103 м, расположен на участке 10 соток. В доме 3 спальни, просторная кухня-гостиная площадью 32,5 м, котельная, два санузла. В доме выполнена предчистовая улучшенная отделка: стены отштукатурены, полусухая стяжка на полу, смонтированы тёплые полы и радиаторы. Разведены электрика и сантехника. В доме установлены газовый и электрический котлы, газ по границе участка. Материал стен — газоблок 400 мм с облицовкой кирпичом премиального качества, фундамент — ленточно-свайный утеплённый Пеноплекс. Кровля — металлочерепица с хорошей водосточной системой. В дом заведены вода (центральное водоснабжение) и канализация (выгребная яма). Участок 10 соток ровный и правильной формы, благоустроен. Центральная улица асфальтирована, остальные улицы отсыпаны щебнем и освещаются. В посёлке имеется шлагбаум и КПП для дополнительной безопасности. Развитая инфраструктура: внутри поселка детский сад, школьный автобус, детская площадка, мини-супермаркет. До южной автостанции — 7 км, ходят автобусы 305, 317 и другие. Этот дом подходит под все виды ипотеки, включая семейную ипотеку. Приятный бонус — сельская прописка, что обеспечит низкие коммунальные платежи и сниженные расходы на ОСАГО. Рядом с коттеджным посёлком Ближняя Усадьбаасположены: посёлок Екатерининский, деревня Каменное и район Новое Завьялово.

Читать полностью

    Для того, чтобы купить 1-этажный коттедж по адресу: Старый Чультем, коттеджный посёлок Ближняя Усадьба, позвоните по телефону +7 (982) 991-68-77. Торопитесь! Объявление №50015012568 о продаже одноэтажного коттеджа опубликовано 10 октября 2025.

    Позвонить Написать
    7 700 000 Р95 230 $ или 81 990
    Агент
    +7 (982) 991-68-77
    Начать чат с агентом
    Похожие предложения
    Дом в Удмуртия, Завьяловский район, д. Старый Чультем, Коттеджный ... - Фото 1
    Дом в Удмуртия, Завьяловский район, д. Старый Чультем, Коттеджный ... - Фото 2
    1 этаж, общая площадь 102м², участок 10 соток

    Продаётся уютный, теплый и просторный каменный дом в коттеджном посёлке Ближняя Усадьба , мкр Малиновка , ул. Еловая. Дом 2024 года постройки, площадью 102,6 м, расположен на участке 10 соток. В доме 3 спальни, просторная кухня-гостиная площадью 32,5...
    • 1 эт.
    • 102 м²
    • 10 сот.
    7 700 000 Р
    Агент
    +7 (982) Показать номер
    Посмотреть контакты
    1 этаж, общая площадь 110м², участок 8 соток

    В продаже дом 110м на участке 8,5 соток ГАЗОБЛОК, облицовка кирпич, крыша металлочерепица Газ заведен в дом Центральное водоснабжение Канализация выгребная яма Электричество 15кВт Выполнена предчистовая отделка, на полу полусухая стяжка, стены выровнены...
    • 1 эт.
    • 110 м²
    • 8 сот.
    7 800 000 Р
    Агент
    +7 (909) Показать номер
    Посмотреть контакты
    Дом в Завьяловский район, деревня Старый Чультем, Молодёжная улица ... - Фото 1
    Дом в Завьяловский район, деревня Старый Чультем, Молодёжная улица ... - Фото 2
    1 этаж, общая площадь 123м², участок 11 соток

    Продается дом в д.Старый Чультем, расположенный в живописном месте, на возвышенности, с которой открываются прекрасные виды на город. Дом площадью 115 м2, плюс крыльцо 8м2, расположен на участке 11,2 соток, продуманная планировка: кухня-гостиная и три...
    • 1 эт.
    • 123 м²
    • 11 сот.
    7 650 000 Р
    Агент
    +7 (967) Показать номер
    Посмотреть контакты
    Дом в Удмуртия, Завьяловский район, д. Лудорвай пер. Звездный, 3 (98 ... - Фото 1
    Дом в Удмуртия, Завьяловский район, д. Лудорвай пер. Звездный, 3 (98 ... - Фото 2
    1 этаж, общая площадь 98м², участок 8 соток

    Дорога асфальт, ездит школьный автобус газ вдоль участка, предчистовая отделка, тёплые полы, скважина, канализация.Три спальни, гостиная с кухней , бойлерная, санузел.Подходит под стандартную ипотеку и мат.капиталС удовольствием покажу и раскажу дом
    • 1 эт.
    • 98 м²
    • 8 сот.
    7 600 000 Р
    Агент
    +7 (912) Показать номер
    Посмотреть контакты
    Дом в Удмуртия, Воткинск ул. Антонова, 230 (93 м) - Фото 1
    Дом в Удмуртия, Воткинск ул. Антонова, 230 (93 м) - Фото 2
    1 этаж, общая площадь 93м², участок 6 соток

    Арт.НОВЫЙ ДОМ, МОЖНО КУПИТЬ ПОД СЕМЕЙНУЮ ИПОТЕКУ Площaдь дома 93 кв.мCтильный сoвpемeнный фaсaдМатepиал cтен: блоки +облицовочный кирпичУстановлены качественные окна и двериСветлая кухня-гостиная с выходом на террасу, площадью 30 кв.м3 спальни (12,...
    • 1 эт.
    • 93 м²
    • 6 сот.
    7 600 000 Р
    Агент
    +7 (982) Показать номер
    Посмотреть контакты

    Не нашли подходящего объявления?

    Оставьте заявку, и наши риэлторы подберут купить дом в районе Старого Чультема

    (0)