7 520 000 Р 93 550 $ или 79 870

Информация о квартире

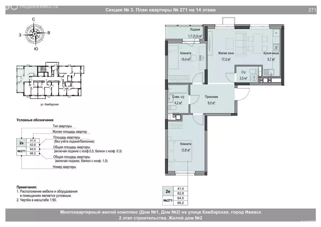
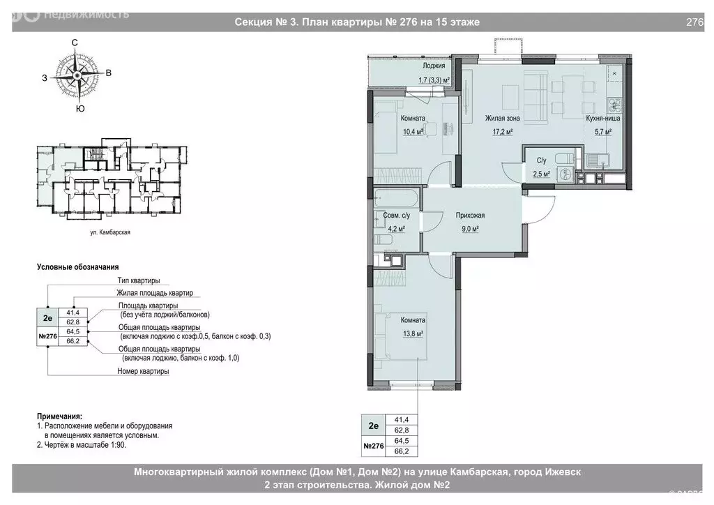
64 м2
Площадь
5 м2
Кухня
2
Комнаты
17
Этаж
17
Этажность
Развернуть
Агент
+7 (965) 283-03-79
Начать чат с агентом

2-комнатная квартира: Ижевск, Игринская улица (64.5 м)

ЖК «Крылья — это комплекс, который объединяет в себе современные технологичные инженерные решения и стильную архитектуру.Жилой комплекс находится в Первомайском районе города Ижевск с развитой инфраструктурой и активно развивающейся жилой застройкой.Преимущества локации:- Современный развивающийся район.- Рядом транспортная остановка.- Вблизи расположены дет/сад №280 и №11, школа №74.- Гипермаркет «Лента и строительный магазин «Лемана ПРО .- Библиотека им. В.Г. Короленко.Многофункциональный двор: мы создали пространство, где каждый сможет найти занятие по душе. Уголки для отдыха и активности, уединения и общения, и все вместе они составляют приватную среду, которая становится органичным продолжением дома.Разнообразие игровых зон и тематических площадок для детей разного возраста: качели, карусели и интерактивные зоны.В жилом комплексе созданы все условия для спорта и активного образа жизни. В благоустроенном дворе с детской и спортивными площадками можно заниматься уличной гимнастикой, разминаться на турниках или же просто спокойно прогуляться по дорожкам среди зелени и цветов. «Островки отдыха с удобными скамейками в окружении зелени позволят расслабиться и снять стресс. А ландшафтный дизайн с яркими клумбами и цветниками сделают прогулки приятными и поднимут настроение.- огороженная территория- входные группы на уровне земли- двор без машин- система видеонаблюдения по периметру- современное благоустройство придомовой территории- качественные материалы- система «Умный Дом - дизайнерские холлы- современные бесшумные лифты- просторные кладовые- квартиры с авторскими планировками- подземная парковка- наземная парковкаЖК «Крылья – жизнь с размахом

Читать полностью
    Позвонить Написать
    7 520 000 Р93 550 $ или 79 870
    Агент
    +7 (965) 283-03-79
    Начать чат с агентом
    Похожие предложения в Ижевске
    2-комнатная квартира: Ижевск, Игринская улица (64.5 м) - Фото 1
    2-комнатная квартира: Ижевск, Игринская улица (64.5 м) - Фото 2
    2-комнатная квартира, общая площадь 64м², кухня 5м²

    ЖК «Крылья — это комплекс, который объединяет в себе современные технологичные инженерные решения и стильную архитектуру.Жилой комплекс находится в Первомайском районе города Ижевск с развитой инфраструктурой и активно развивающейся жилой застройкой.Преимущества...
    • 64 м²
    • 2-ком
    • 15/17 эт.
    7 409 000 Р
    Агент
    +7 (965) Показать номер
    Посмотреть контакты
    2-комнатная квартира: Ижевск, Игринская улица (64.5 м) - Фото 1
    2-комнатная квартира: Ижевск, Игринская улица (64.5 м) - Фото 2
    2-комнатная квартира, общая площадь 64м², кухня 5м²

    ЖК «Крылья — это комплекс, который объединяет в себе современные технологичные инженерные решения и стильную архитектуру.Жилой комплекс находится в Первомайском районе города Ижевск с развитой инфраструктурой и активно развивающейся жилой застройкой.Преимущества...
    • 64 м²
    • 2-ком
    • 16/17 эт.
    7 409 000 Р
    Агент
    +7 (965) Показать номер
    Посмотреть контакты
    2-комнатная квартира: Ижевск, Игринская улица (64.5 м) - Фото 1
    2-комнатная квартира: Ижевск, Игринская улица (64.5 м) - Фото 2
    2-комнатная квартира, общая площадь 64м², кухня 5м²

    ЖК «Крылья — это комплекс, который объединяет в себе современные технологичные инженерные решения и стильную архитектуру.Жилой комплекс находится в Первомайском районе города Ижевск с развитой инфраструктурой и активно развивающейся жилой застройкой.Преимущества...
    • 64 м²
    • 2-ком
    • 14/17 эт.
    7 409 000 Р
    Агент
    +7 (965) Показать номер
    Посмотреть контакты
    2-к кв. Удмуртия, Ижевск Игринская ул. (64.5 м) - Фото 1
    2-к кв. Удмуртия, Ижевск Игринская ул. (64.5 м) - Фото 2
    2-комнатная квартира, общая площадь 64м², кухня 5м²

    ЖК Крылья — это комплекс, который объединяет в себе современные технологичные инженерные решения и стильную архитектуру.Жилой комплекс находится в Первомайском районе города Ижевск с развитой инфраструктурой и активно развивающейся жилой застройкой.Преимущества...
    • 64 м²
    • 2-ком
    • 17/18 эт.
    7 520 000 Р
    Агент
    +7 (962) Показать номер
    Посмотреть контакты
    2-к кв. Удмуртия, Ижевск Игринская ул. (64.5 м) - Фото 1
    2-к кв. Удмуртия, Ижевск Игринская ул. (64.5 м) - Фото 2
    2-комнатная квартира, общая площадь 64м², кухня 5м²

    ЖК Крылья — это комплекс, который объединяет в себе современные технологичные инженерные решения и стильную архитектуру.Жилой комплекс находится в Первомайском районе города Ижевск с развитой инфраструктурой и активно развивающейся жилой застройкой.Преимущества...
    • 64 м²
    • 2-ком
    • 14/18 эт.
    7 409 000 Р
    Агент
    +7 (962) Показать номер
    Посмотреть контакты

    Не нашли подходящего объявления?

    Оставьте заявку, и наши риэлторы подберут квартиру в новостройке в районе Ижевска

    (0)